PRZESTRONNY, ATRAKCYJNY DOM
NA DZIAŁCE W POBLIŻU LASU WOLSKIEGO
W WYJĄTKOWYCH PRZEGORZAŁACH
LOKALIZACJA, DZIAŁKA
Prezentujemy bardzo atrakcyjną ofertę sprzedaży wolnostojącego domu, położonego na 4,75 ar działce w bardzo spokojnej, zielonej części dzielnicy Krakowa Zwierzyniec -Przegorzały, w sąsiedztwie Woli Justowskiej i Bielan.
Otoczenie malownicze, pięknie położone, z licznymi terenami zielonymi i rekreacyjnymi; m.in. Las Wolski, Kopiec Kościuszki, Klasztor kamedułów na Bielanach, trasy rowerowe, kajakowe, stadniny koni.
Bardzo dogodny i szybki dojazd do centrum Krakowa, który zajmuje kilka minut samochodem.
Dobre połączenie komunikacja miejską; linie autobusowe, a także tramwajowe z pętli Salwator.
Doskonały dojazd do autostrady A4, czy też Lotniska Balice.
W pobliżu bardzo dobra infrastruktura handlowo-usługowa; do najbliższego sklepu spożywczego około 100 m, w bliskiej odległości centrum handlowe ATUT (a w nim m.in. Biedronka, Rossmann, Media Expert, piekarnia, apteka).
W sąsiedztwie przychodnia, szkoły, przedszkola i żłobki.
Działka kameralna, ogrodzona, otoczona zielenią, z ogrodem oraz miejscem do wypoczynku i relaksu.
Brama wjazdowa otwierana na pilota, na działce i w domu monitoring.
Przed domem kilka miejsc do parkowania samochodów, w budynku duży 26 m2 garaż na dwa auta.
DOM
Budynek o atrakcyjnej bryle, z możliwością podziału na kilka mieszkań, wybudowany w końcówce lat 80-tych, o konstrukcji murowanej tradycyjnej z żelbetowymi stropami i stropodachem. Ściany murowane z pustaków grubości 25 cm, ocieplone styropianem.
Budynek zadbany, systematycznie remontowany i odnawiany.
Dom wyposażony w instalację fotowoltaiczną, zamontowaną w listopadzie 2021 roku,
z 10-letnia gwarancją.
W 2018 roku została wymieniona cała instalacja grzewcza wraz z piecem.
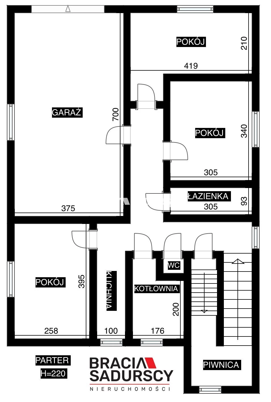
Dom składa się z czterech kondygnacji: parteru, dwóch pięter i nieużytkowego strychu.
Na parterze (pow. 88,10 m2, wysokość 2,20 m) znajdują się:
- trzy pokoje,
- kuchnia,
- kotłownia,
- łazienka,
- wc,
- korytarz,
- garaż,
- podpiwniczenie.
Na I piętrze (pow. 70 m2, wysokość 2,60 m2):
- trzy pokoje,
- kuchnia,
- pomieszczenie gospodarcze,
- łazienka,
- wc,
- przedpokój,
- klatka schodowa,
- dodatkowo duży (20,50 m2) taras i dwa balkony.
Na II piętrze (pow. 71,20 m2, wysokość 2,60 m2):
- trzy pokoje,
- kuchnia,
- pomieszczenie gospodarcze,
- łazienka,
- wc,
- przedpokój,
- klatka schodowa,
- dodatkowo taras i dwa balkony.
Rozkłady i wymiary poszczególnych pomieszczeń zawierają załączone w ogłoszeniu rzuty.
Dużym atutem nieruchomości jest jej możliwość podziału na kilka mieszkań.
Na szczególną uwagę zasługują także wyjątkowe, solidnie wykonane z ponadczasowego lastrico schody, łączące piętra.
Podłogi w pokojach drewniane, okna PCV z ekspozycją na wszystkie strony świata.
Nieruchomość posiada księgę wieczystą bez obciążeń.
Dodatkowe informacje:
Elżbieta Rudek
Zapytaj o ofertę
tel. 505 110 150
Zapraszamy na prezentację w dogodnych terminach.
Prezentacja nieruchomości po podpisaniu umowy pośrednictwa jest bezpłatna.
::DODATKOWE INFORMACJE
Prąd: w budynku
Gaz: tak - miejski
Woda: tak - miejska
Dojazd: asfalt
Otoczenie: zabudowa jednorodzinna
Ogrzewanie: C.O. GAZOWE
Kanalizacja: tak
Komunikacja publ.: autobus
Teren ogrodzony: TAK
Okna: PCV
Instalacje: dobre
Balkon: jest
Liczba balkonów: 4
Tarasy: taras duży
Liczba tarasów: 2
Zagosp. działki: zagospodarowana
Ukształtowanie działki: płaska
Kształt działki: prostokąt
Rodzaj domu: wolnostojący
Stan wybudowania: Pod klucz
Typ elewacji: tynk zwykły
Podst. materiał budowlany: pustak
Stan budynku: do zamieszkania
Podpiwniczenie: tak
Garaż: w bryle
Ogrodzenie działki: ogrodzona
Rok budowy: 1988
Liczba pokoi: 9
Wysokość pomieszczeń [m]: 2,6000
Liczba sypialni: 9
Podłogi pokoi: parkiet
Ściany pokoi: tynk gipsowy
Typ kuchni: jasna z oknem
Rodzaj kuchni: oddzielna
Typ łazienki: osobno z wc
Liczba łazienek: 3
Glazura łazienki: glazura
Podłoga łazienki: płytki
Wyposażenie łazienki: umywalka, lustro, kabina prysznicowa
Ściany łazienki: glazura
Liczba WC: 3
Liczba przedpokoi: 3
::LINK DO STRONY
https://sadurscy.pl/offer/BS1-DS-311411
::KONTAKT DO AGENTA
Elżbieta Rudek
+48 505-110-150
Zapytaj o ofertę
::DANE BIURA
Oddział BS1, Kapelanka
Kapelanka 1A/1
30-347 Kraków
12 429-25-12
Pośrednik odpowiedzialny zawodowo za wykonanie umowy pośrednictwa: Dariusz Sadurski (licencja nr: 803)