Dom jednorodzinny z basenem, strefą SPA oraz windą w Kozach, powiat bielski
Oferujemy na sprzedaż dom jednorodzinny, wolnostojący, w stanie deweloperskim , o powierzchni 247 m 2 posadowiony na działce o powierzchni 1294 m 2 . Dom zlokalizowany jest w odległości 7 km od centrum Bielska-Białej. Dom wyróżnia bryła o niebanalnej, nowoczesnej architekturze, w której poza standardową strefą dzienną i nocną oraz dwustanowiskowy garaż, znalazło się miejsce na strefę SPA z basenem, a nawet na windę. Oferowana przestrzeń wraz z nowoczesnymi rozwiązaniami technicznymi sprawi, iż zamieszkanie w tym miejscu nawet najbardziej wymagającym zapewni wygodę codziennego funkcjonowania oraz komfort wypoczynku z ponadprzeciętnymi możliwościami relaksu.
Budynek został zaprojektowany w sposób ułatwiający dostęp oraz użytkowanie przez osoby niepełnosprawne oraz posiadające ograniczenia w sprawności ruchowej. Komunikację poziomą zaprojektowano bez barier architektonicznych . Dodatkowo zamontowana winda ułatwia komunikację z parteru na piętro budynku.
Dom może stanowić także idealne miejsce dla osób wymagających stałej aqua-rehabilitacji czy fizjoterapii - teraz codzienne, kilkugodzinne zabiegi można realizować we własnym domu!
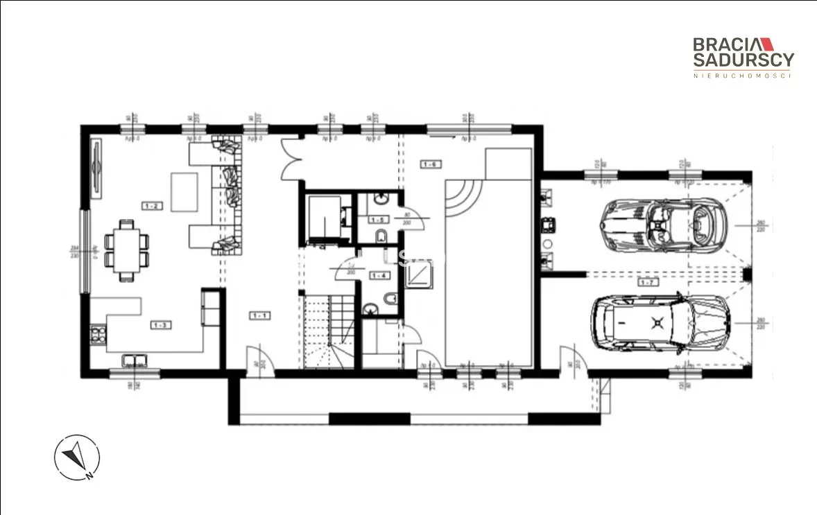
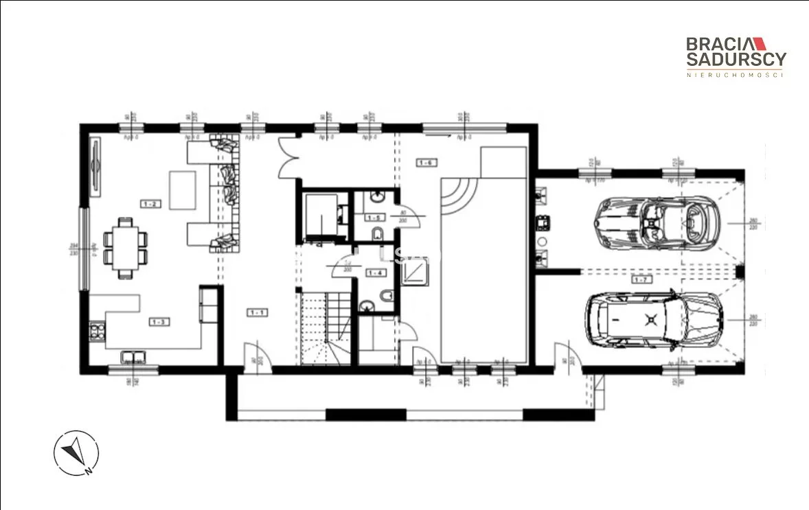
ROZKŁAD POMIESZCZEŃ
Dom został funkcjonalnie zaprojektowany z wyraźnym podziałem na strefę dzienną i nocną (prywatną) oraz strefę SPA z basenem. Oferowana przestrzeń obejmuje:
Na parterze:
Strefę dzienną z dużym, jasnym salon z otwartą kuchnia i jadalnią, wygodną komunikację oraz toaletę
Strefę SPA , w której znajdziemy basen o wymiarach 6x3m z przeciwprądem i podświetleniem, miejsce na saunę, jakuzzi, toaletę oraz prysznic
Dwustanowiskowy garaż
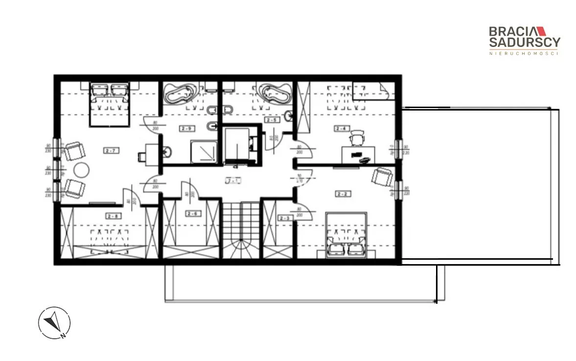
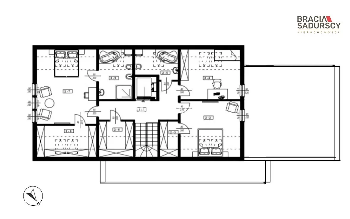
Na piętrze
Część nocną (prywatną) obejmującą sypialnię główną z garderobą i łazienką, sypialnię z garderobą, pokój, łazienkę oraz dodatkową garderobę.
OPIS TECHNICZNY, MEDIA, INSTALACJE
Dom wybudowany w systemie szkieletowym z 30-letnią gwarancją wg. najnowszej niemieckiej technologii o najwyższej klasie energetycznej „A”.
Pełne instalacje: wodno-kanalizacyjną, elektryczną, centralnego ogrzewania z piecem gazowym, osobne ogrzewanie wody w basenie.
Standard wykończenia: deweloperski
DODATKOWE ATUTY
dwustanowiskowy garaż naziemny z automatyczną bramą
4-osobowa winda
centralny odkurzacz
rekuperacja dla części mieszkalnej i rekreacyjnej (z osuszaniem powietrza na basenie)
basen wyposażony w instalację filtrującą i podgrzewającą wodę
DOJAZD, KOMUNIKACJA I NAJBLIŻSZA OKOLICA
Dom posadowiony jest na pełnej zieleni działce o regularnym kształcie co daje duży potencjał dla własnej aranżacji oraz zapewnia możliwość niezakłóconego odpoczynku. W pobliżu znajdują się zabudowania jednorodzinne. Szkoła podstawowa, przedszkole oraz inne obiekty użyteczności publicznej znajdują się w odległości ok. 1,5 km.
Dojazd do położonych w odległości zaledwie 7 km Kęt zajmuje ok. 8 minut, a do Bielska-Białej ok. 15 minut . W obu kierunkach można dostać się także dzięki środkom komunikacji zbiorowej - autobusem lub pociągiem.
W pobliżu znajdują się:
- przystanek autobusowy linii 110 - 350 m
- sklep Lewiatan - 500 m
- stacja PKP - 1,3 km
- droga ekspresowa S1 - 7 km
- centrum Bielsko-Białej - 9 km
- Międzybrodzie Żywieckie - 15 km
FORMA WŁASNOŚCI
Dom posiada uregulowany stan prawny.
TERMIN DOSTĘPNOŚCI
Od zaraz.
INNE
- istnieje możliwość wykończenia pod klucz na indywidualne zamówienie
Podana cena jest ceną NETTO (!) .
Kupujący nie płaci podatku PCC .
Cena podlega negocjacji.
Biuro pomaga bezpiecznie przeprowadzić transakcję.
Szczegóły oferty:
798 352 683
Zapytaj o ofertę
::DODATKOWE INFORMACJE
Prąd: jest
Gaz: jest
Woda: jest
Dojazd: asfalt
Otoczenie: zabudowa jednorodzinna
Ogrzewanie: piec dwufunkcyjny
Kanalizacja: miejska
Komunikacja publ.: kolej, autobus
Odległość do komunikacji publicznej [m]: 350
Odl. do sklepu [m]: 500
Odl. do szkoły [m]: 1500
Odl. do przedszkola [m]: 1500
Przystosowania dla niepełnosprawnych: TAK
Okna: PCV
Instalacje: nowe
Tarasy: taras duży
Liczba tarasów: 1
Powierzchnia ogródka [m2]: 500
Wymiary działki [m]: 20x60 m
Zagosp. działki: niezagospodarowana
Ukształtowanie działki: płaska
Kształt działki: prostokąt
Rodzaj domu: jednorodzinny
Stan wybudowania: Stan deweloperski
Typ elewacji: baranek
Pokrycie dachu: blachodachówka
Powierzchnia użytkowa [m2]: 247
Stan budynku: do wykończenia
Podpiwniczenie: nie
Garaż: dwustanowiskowy
Ogrodzenie działki: brak
Rok budowy: 2023
Liczba pokoi: 4
Wysokość pomieszczeń [m]: 2,6000
Liczba sypialni: 3
Powierzchnia pokoi [m2]: 24, 21, 14, 12
Typ kuchni: aneks kuchenny
Rodzaj kuchni: aneks kuchenny połączony z jadalnią i salonem
Powierzchnia kuchni [m2]: 9
Liczba łazienek: 2
Powierzchnia łazienki [m2]: 7, 6
Liczba WC: 2
Powierzchnia WC: 2, 2
Liczba przedpokoi: 2
Powierzchnia przedpokoi [m2]: 14, 11
::LINK DO STRONY
https://sadurscy.pl/offer/BS5-DS-295889
Zobacz Wirtualny Spacer: https://sb360.online/0g327n
::KONTAKT DO AGENTA
Marek Wawrzeń
+48 798-352-683
Zapytaj o ofertę
::DANE BIURA
Oddział BS5, Nowa Huta
Bracia Sadurscy Dariusz Sadurski
Os. Kazimierzowskie 36
31-844 Kraków
12 265 10 29
Pośrednik odpowiedzialny zawodowo za wykonanie umowy pośrednictwa: Marek Wawrzeń (licencja nr: 26458)