Chrzanów, ul. Kadłubek. Dom wolno stojący o pow. użytkowej 174,88 m 2 , wraz z budynkiem usługowym o pow. użytkowej 40,70 m 2 , na działce - 357 m 2 .
Nieruchomość składająca się z domu jednorodzinnego, wolnostojącego, jednopiętrowego, częściowo podpiwniczonego z lat 60-tych XX w. w centrum Chrzanowa, po remoncie generalnym w latach 2005-2006, oraz osobnego budynku usługowego.
Pow. całkowita domu wynosi 190,18 m 2 , w tym pow. użytkowa (mieszkalna) wynosi 174.88 m 2 .
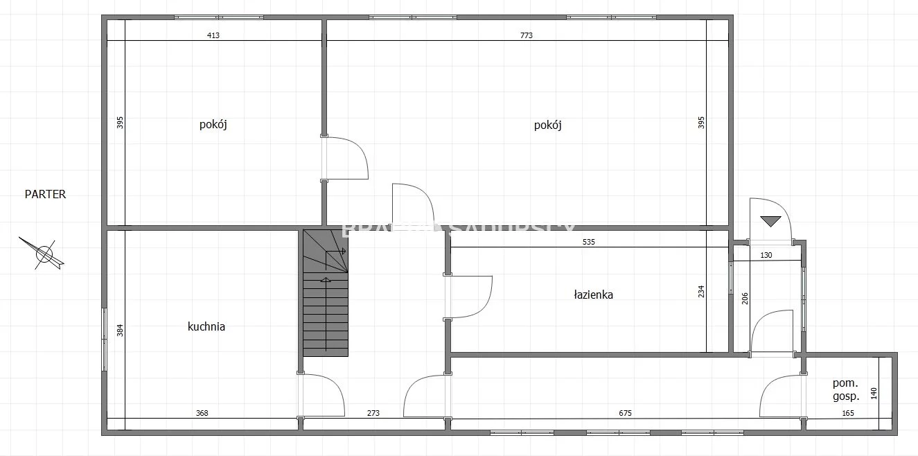
Na poziomie parteru o pow. użytkowej 96,51 m 2 znajduje się przestronny salon ( 30,45 m 2 ), pokój o pow. 16,72 m 2 , osobna duża kuchnia o pow. 13,55 m 2 , duża łazienka o pow. 12,50 m 2 , spiżarka oraz holl.
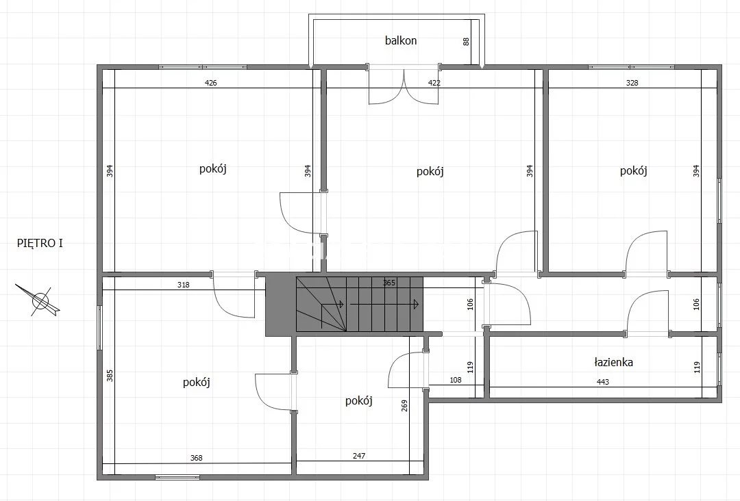
Na poziomie piętra o pow. użytkowej 78,37 m 2 znajdują się 4 pokoje ( 16,78 m 2 ; 16,63 m 2 ; 12,92 m 2 ; 21,21 m 2 ), łazienka ( 4,89 m 2 ) oraz komunikacja.
W piwnicy o pow. 15,3 m 2 znajduje się kotłownia.
Dom zbudowany z cegły, dach kryty blachą, okna PCV, podłogi w pokojach na parterze z mozaiki parkietowej, na piętrze z paneli. Sufity podwieszane. W trakcie remontu wymienione instalacje. Ogrzewanie centralne z pieca gazowego z zasobnikiem ciepłej wody, lub z pieca węglowego (nowego).
Budynek usługowy o pow. użytkowej 40,7 m2 składa się z 2 pomieszczeń usługowych, łazienki i zaplecza socjalnego. Budynek na działalność np. gabinetu kosmetycznego, fryzjerskiego, kancelarii, małego biura, itp.
Na działce garaż oraz 4 miejsca parkingowe.
Działka ogrodzone, z bezpośrednim zjazdem z ulicy Kadłubek.
Szczegóły oferty:
+48 502 104 545
::DODATKOWE INFORMACJE
Prąd: jest
Gaz: tak - miejski
Woda: tak - miejska
Dojazd: asfalt
Otoczenie: centrum miasta
Ogrzewanie: c. o. gazowe i węglowe
Kanalizacja: miejska
Komunikacja publ.: autobus miejski
Teren ogrodzony: TAK
Okna: PCV
Instalacje: wymienione
Balkon: duży
Liczba balkonów: 1
Zagosp. działki: zagospodarowana
Ukształtowanie działki: płaska
Rodzaj domu: wolnostojący
Typ elewacji: siding
Podst. materiał budowlany: cegła pełna
Pokrycie dachu: blacha
Pozwolenie na użytkowanie: tak
Powierzchnia użytkowa [m2]: 215,5800
Stan budynku: do zamieszkania
Podpiwniczenie: częściowo podpiwniczony
Garaż: brak
Ogrodzenie działki: mieszane
Rok budowy: 1960
Liczba pokoi: 6
Wysokość pomieszczeń [m]: 2,6500
Liczba sypialni: 3
Powierzchnia pokoi [m2]: 30,45; 16,72; 15,05; 16,78; 16,63; 12,92
Podłogi pokoi: panele podłogowe, mozaika parkietowa, parkiet
Ściany pokoi: zwykłe, malowane
Wystawa okien - pokoje : Pn-Zach, Pn-Wsch
Typ kuchni: jasna z oknem
Rodzaj kuchni: oddzielna
Powierzchnia kuchni [m2]: 13,55
Podłoga kuchni: terakota
Wystawa okien - kuchnia: Pn-Zach
Typ łazienki: razem z wc
Liczba łazienek: 2
Powierzchnia łazienki [m2]: 12,50; 4,89
Glazura łazienki: glazura
Podłoga łazienki: terakota
Wyposażenie łazienki: wanna, prysznic
Ściany łazienki: glazura
Wystawa okien - łazienka : Pd-Wsch
Powierzchnia przedpokoi [m2]: 8,36; 2,66;5,19
Ściany przedpokoi: zwykłe, panele
::LINK DO STRONY
https://sadurscy.pl/offer/BS5-DS-309984
Zobacz Wirtualny Spacer: https://tour.feelestate.com/view/fullscreen/id/VV9BD
::KONTAKT DO AGENTA
Dariusz Kornaś
+48 502-104-545
Zapytaj o ofertę
::DANE BIURA
Oddział BS5, Nowa Huta
Bracia Sadurscy Dariusz Sadurski
Os. Kazimierzowskie 36
31-844 Kraków
12 265 10 29
Pośrednik odpowiedzialny zawodowo za wykonanie umowy pośrednictwa: Dariusz Sadurski (licencja nr: 803)