Solidny, odporny i wytrzymały dom w Krakowie - Rajsku
Oferujemy DO SPRZEDAŻY LUB ZAMIANY 6-pokojowy, dwukondygnacyjny dom o powierzchni użytkowej ok. 260 m 2 w stanie niepełnym deweloperskim na działce budowlanej o pow. 20 arów .
Betonowo-murowana konstrukcja budynku, mocno zbrojone stropy, podpiwniczenie wzmocnione zbrojonymi blokami betonowymi powoduje, że budynek jest NIEZWYKLE TRWAŁY I WYTRZYMAŁY co ma niebagatelne znaczenie w dzisiejszych czasach! Patrząc przez ten pryzmat, cena nieruchomości staje się znacznie atrakcyjniejsza!
Dom o unikalnym, indywidualnym projekcie, z urzekającym widokiem na panoramę pogórza i samych Tatr , posadowiony na prostokątnej działce o wymiarach 28x72 m i powierzchni 2029 m 2 (z możliwością podziału), w otoczeniu zieleni, w bardzo spokojnej i cichej, a zarazem bardzo dobrze skomunikowanej dzielnicy Krakowa - Swoszowice Rajsko .
Usytuowanie oraz układ architektoniczny domu sprawia, iż stanowi on istne wrota do „zaczarowanego ogrodu” - mijając dom znajdujemy się przed częścią działki położonej na nasłonecznionym, łagodnym stoku o południowej ekspozycji. Stąd już tylko krok dzieli nas, by po przekroczeniu otoczonej winoroślą pergoli, znaleźć się w magicznym starym sadzie, w którym zupełnie można zapomnieć iż znajdujemy się tuż od centrum wielkiego miasta…
ROZKŁAD POMIESZCZEŃ
Dom został podzielony na funkcjonalne strefy: strefę gospodarczą oraz mieszkalną o następującym układzie:
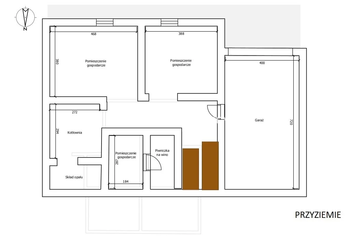
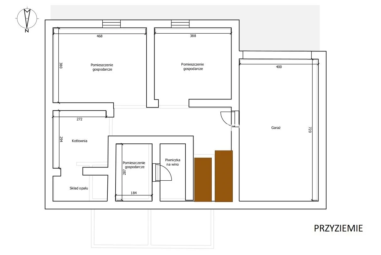
Strefa gospodarcza - przyziemie:
- garaż z kanałem
- kotłownia
- 3 pomieszczenia gospodarcze
- piwniczka na przetwory lub wino
Strefa mieszkalna:
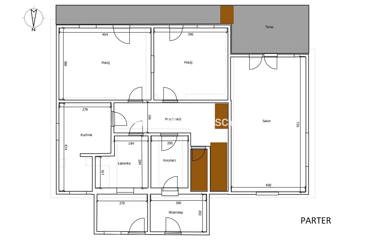
Parter:
- duży salon z wyjściem na taras
- dwa pokoje - każdy z wyjściem na balkon
- kuchnia
- łazienka
Poddasze:
- pokój z wyjściem na taras
- pokój z wyjściem na balkon
- gabinet
- otwarta kuchnia
- łazienka
- poddasze/strych
OPIS TECHNICZNY, MEDIA, INSTALACJE
Dom wybudowany w 1994 roku, o ddany do użytkowania w roku 2016 .
Dom znajduje się w stanie „niepełnym deweloperskim” , który obejmuje:
- ściany: z dwóch warstw pustaka cementowego (dom nieocieplony),
- kompletny dach z orynnowaniem, ocieplony watą mineralną, kryty blachą falistą (do malowania),
- nową stolarkę okienną (okna dwuszybowe) z parapetami zewnętrznymi,
- drzwi zewnętrzne, bramę garażową,
- instalację elektryczną wraz z uzbrojoną rozdzielnią,
- instalację C.O. z grzejnikami oraz nowym piecem De Dietrich,
- instalację wodno - kanalizacyjną
- media podłączone do domu gaz, kanalizacja, prąd, woda
- betonowy zbiornik na deszczówkę do podlewania
MIEJSCOWY PLAN ZAGOSPODAROWANIA PRZESTRZENNEGO
Działka leży na terenie zabudowy mieszkaniowej jednorodzinnej oznaczonej w miejscowym planie zagospodarowania przestrzennego symbolem 19 MN.
Zasady, parametry i wskaźniki kształtowania zabudowy i zagospodarowania terenu umożliwiają wybudowanie na działce drugiego domu.
- powierzchnia nowo wydzielanych działek budowlanych nie może być mniejsza niż: 800 m²
- wskaźnik powierzchni zabudowy nie może przekroczyć wartości: 0,25
- powierzchnia terenu biologicznie czynna musi stanowić nie mniej niż: 55%
- wysokość projektowanych budynków, mierzona od poziomu terenu przy najniżej położonym wejściu do budynku nie może być większa niż: 10 m
Szczegóły MPZP dostępne pod adresem: https://www.bip.krakow.pl/?dok_id=46459&sub_dok_id=46459
DOJAZD, KOMUNIKACJA I NAJBLIŻSZA OKOLICA
Dom położony bezpośrednio przy drodze asfaltowej. Lokalizacja nieruchomości zapewnia szybką komunikację z centrum Swoszowic - 1600 m , obwodnicą A4 - 2,5 km, Wieliczką - 6 km czy też CH Zakopianka - 5,5 km, a w wolnym czasie daje możliwość nieskrępowanego korzystania z doskonałych terenów spacerowych i rekreacyjnych Wzgórza Rajsko.
W bezpośredniej bliskości znajdują się także podstawowe obiekty użyteczności publicznej tj. sklep spożywczy - 400 m czy szkoła podstawowa i przedszkole „Rajska Szkoła” ( https://www.rajskaszkola.pl / ) - 950 m.
INNE
- na działce znajduje się budynek gospodarczy przeznaczony do wyburzenia
- rozkład pomieszczeń pozwala na aranżację budynku pod kątem inwestycji (przygotowania dwóch niezależnych lokali mieszkalnych)
- istnieje możliwość ZAMIANY (z dopłatą) na dom o pow. 70-100 m 2 w okolicach Niepołomic, Woli Batorskiej lub w gminie Kocmyrzów-Luborzyca.
FORMA WŁASNOŚCI NIERUCHOMOŚCI
Dom posiada uregulowany stan prawny.
TERMIN DOSTĘPNOŚCI
Dom dostępny od zaraz.
CENA
Istnieje możliwość negocjacji ceny (na wykończenie domu)
Biuro pomaga bezpiecznie przeprowadzić transakcję.
Szczegóły oferty:
798 352 683
Zapytaj o ofertę
::DODATKOWE INFORMACJE
Prąd: jest
Gaz: jest
Woda: piec gazowy dwufunkcyjny
Dojazd: asfalt
Otoczenie: zabudowa jednorodzinna
Ogrzewanie: C.O. GAZOWE
Kanalizacja: miejska
Komunikacja publ.: MPK
Odległość do komunikacji publicznej [m]: 75
Odl. do sklepu [m]: 400
Odl. do szkoły [m]: 950
Odl. do przedszkola [m]: 950
Teren ogrodzony: TAK
Okna: PCV
Instalacje: dobre
Balkon: jest
Liczba balkonów: 2
Tarasy: taras duży
Liczba tarasów: 2
Powierzchnia balkonów/tarasów [m2]: 44
Powierzchnia ogródka [m2]: 1500
Wymiary działki [m]: 28x72 m
Zagosp. działki: częściowo zagospodarowana
Ukształtowanie działki: pochyła
Kształt działki: prostokąt
Rodzaj domu: wolnostojący
Stan wybudowania: Stan deweloperski
Typ elewacji: brak
Pokrycie dachu: blacha
Powierzchnia użytkowa [m2]: 260
Stan budynku: do wykończenia
Podpiwniczenie: tak
Garaż: w bryle
Ogrodzenie działki: mieszane
Rok budowy: 1994
Liczba pokoi: 6
Wysokość pomieszczeń [m]: 2,5500
Liczba sypialni: 5
Powierzchnia pokoi [m2]: 29, 19, 16, 12, 10, 9
Podłogi pokoi: wylewka betonowa
Ściany pokoi: tynk
Wystawa okien - pokoje : Zach, Wsch, Pn, Pd
Typ kuchni: oddzielna
Rodzaj kuchni: jasna z oknem
Powierzchnia kuchni [m2]: 12,4
Podłoga kuchni: wylewka betonowa
Wystawa okien - kuchnia: Pn, Wsch
Typ łazienki: razem z wc
Liczba łazienek: 2
Powierzchnia łazienki [m2]: 8, 6
Podłoga łazienki: wylewka betonowa
Ściany łazienki: tynk
Liczba przedpokoi: 3
Powierzchnia przedpokoi [m2]: 9, 9, 5
Podłoga przedpokoi: wylewka betonowa
Ściany przedpokoi: tynk
::LINK DO STRONY
https://sadurscy.pl/offer/BS5-DS-289614
Zobacz Wirtualny Spacer: https://panoramy.galactica.pl/virgo/397524
::KONTAKT DO AGENTA
Marek Wawrzeń
+48 798-352-683
Zapytaj o ofertę
::DANE BIURA
Oddział BS5, Nowa Huta
Bracia Sadurscy Dariusz Sadurski
Os. Kazimierzowskie 36
31-844 Kraków
12 265 10 29
Pośrednik odpowiedzialny zawodowo za wykonanie umowy pośrednictwa: Marek Wawrzeń (licencja nr: 26458)