Spokojna okolica, doskonała infrastruktura – idealne mieszkanie dla Ciebie!
Przestronne mieszkanie w spokojnej okolicy z doskonałą infrastrukturą – Zwoleń
Zapraszamy do zapoznania się z wyjątkową ofertą sprzedaży mieszkania położonego w sercu urokliwego miasta Zwoleń – idealnego miejsca dla osób ceniących ciszę, komfort i wygodę życia z dala od wielkomiejskiego zgiełku.
Lokalizacja:
Zwoleń to kameralne miasto w województwie mazowieckim, które łączy w sobie spokój małej miejscowości z dostępem do pełnej infrastruktury miejskiej. Mieszkanie znajduje się w doskonale skomunikowanej części miasta, zaledwie kilka minut spacerem od centrum. W pobliżu znajdują się sklepy, punkty usługowe, tereny spacerowe i rekreacyjne – wszystko, czego potrzeba do wygodnego życia.
Dodatkowym atutem jest świetne położenie względem większych miast:
• ok. 30 km do Radomia
• ok. 30 km do Puław
• ok. 125 km do Warszawy
Mieszkanie:
Lokal znajduje się na parterze nowoczesnego budynku o eleganckiej bryle i przemyślanym układzie pomieszczeń. Powierzchnia całkowita wynosi 71,19 m², a dodatkowo do mieszkania przynależy prywatny ogródek o powierzchni 42 m² oraz miejsce parkingowe w cenie.
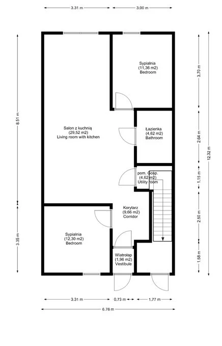
Rozkład pomieszczeń:
• Wiatrołap – 1,96 m²
• Korytarz – 9,66 m²
• Pokój – 12,30 m²
• Kuchnia z salonem – 29,52 m²
• Pokój – 11,36 m²
• Łazienka – 4,62 m²
• Pomieszczenie gospodarcze – 1,77 m²
Dodatkowo do dyspozycji mieszkańców przestronny taras, idealny do wypoczynku na świeżym powietrzu.
Standard wykończenia
Mieszkanie sprzedawane jest w stanie deweloperskim, co daje pełną swobodę aranżacji wnętrz według własnych upodobań. Budynek i lokal zostały wykonane z najwyższej jakości materiałów, z dbałością o każdy detal:
• Instalacja elektryczna na najwyższym poziomie
• Wylewki i ogrzewanie podłogowe
• Tynki wewnętrzne
• Ogrzewanie indywidualne – własny piec gazowy
• 3-szybowe okna Oknoplast zapewniające doskonałą izolację termiczną i akustyczną
• Drzwi zewnętrzne renomowanej marki Martom
Media
W mieszkaniu dostępne są wszystkie niezbędne media:
• Woda
• Kanalizacja
• Gaz
• Prąd
To idealna propozycja dla osób szukających przestrzeni, komfortu i spokoju, nie rezygnując z wygody życia w dobrze skomunikowanej lokalizacji. Jeśli marzysz o własnym miejscu z ogródkiem, w otoczeniu zieleni i z dostępem do miejskich udogodnień – ta oferta jest właśnie dla Ciebie!
FINANSE:
Mieszkanie z ogródkiem: 440000 PLN
KONTAKT:
Zainteresowany? Skontaktuj się z nami pod numerem +48 729 141 123 lub napisz nam maila poprzez formularz kontaktowy dostępny w ogłoszeniu.
________________________________________
Czy wiesz, że z homfi możesz kupić nieruchomość kompleksowo, tzn. załatwiając wszystko w jednej firmie? Oprócz agentów nieruchomości pomagających w znalezieniu i zakupie nieruchomości, oddajemy Ci do dyspozycji doświadczonych ekspertów kredytowych, zdolnych architektów wnętrz i zaradnych specjalistów od zarządzania najmem. Dzięki temu z nami znajdziesz nieruchomość, sfinansujesz jej zakup, zaprojektujesz i wykończysz jej wnętrze a następnie sprzedasz lub wynajmiesz z opcją przekazania nam nieruchomości do zarządzania najmem.
Zainteresowany? Zapytaj opiekuna oferty o szczegóły.
Quiet neighborhood, excellent infrastructure – the perfect apartment for you!
Spacious apartment in a quiet neighborhood with excellent infrastructure – Zwoleń.
We invite you to explore this unique apartment for sale located in the heart of the charming town of Zwoleń – an ideal place for those who value peace, comfort, and convenience of living away from the hustle and bustle of the city.
Location:
Zwoleń is a cozy town in the Masovian Voivodeship, combining the tranquility of a small town with access to full urban infrastructure.
The apartment is located in a well-connected part of the city, just a few minutes' walk from the center.
Nearby are shops, services, walking and recreational areas – everything you need for a comfortable life.
An additional advantage is its excellent location relative to larger cities:
• approx. 30 km to Radom
• approx. 30 km to Puławy
• approx. 125 km to Warsaw.
Apartment:
The apartment is located on the ground floor of a modern building with an elegant design and a well-thought-out layout.
The total area is 71.19 m², and the apartment additionally includes a private garden of 42 m² and a parking space included in the price.
Room layout:
• Vestibule – 1.96 m²
• Hallway – 9.66 m²
• Room – 12.30 m²
• Kitchen with living room – 29.52 m²
• Room – 11.36 m²
• Bathroom – 4.62 m²
• Utility room – 1.77 m²
Additionally, residents have access to a spacious terrace, ideal for relaxing outdoors.
Finishing standard
The apartment is being sold in developer's standard, which gives you complete freedom to arrange the interior according to your preferences. The building and premises were constructed of the highest quality materials, with attention to every detail:
• Top-quality electrical installation
• Underfloor screeds and heating
• Interior plaster
• Individual heating – own gas furnace
• Triple-pane Oknoplast windows providing excellent thermal and acoustic insulation
• External doors by the renowned brand Martom
Media
The apartment includes all necessary utilities:
• Water
• Sewer
• Gas
• Electricity
This is an ideal proposition for those looking for space, comfort, and peace, without sacrificing the convenience of living in a well-connected location. If you dream of your own place with a garden, surrounded by greenery and access to city amenities – this offer is for you!
FINANCE:
Apartment with a garden: PLN 440,000
CONTACT: Interested? Contact us at +48 729 141 123 or send us an email using the contact form available in the ad.
________________________________________
Did you know that with homfi you can buy a property comprehensively, i.e., with one company? In addition to real estate agents who help you find and purchase properties, we also provide experienced mortgage experts, talented interior designers, and resourceful lease management specialists. With us, you can find a property, finance its purchase, design and finish its interior, and then sell or rent it, with the option of transferring the property to us for lease management.
Interested? Ask the listing manager for details.