Zdjęcia należą do właściciela oferty.
Na sprzedaż połowę bliźniaka 98m2 okolica ulicy Igołomskiej w Krakowie.
Oferowana nieruchomość jest sprzedawana w stanie developerskim po odbiorze. Kupujący nie płaci podatku Pcc.
Zostały dwa lokale z działką 440m2 cenna 999.000 zł i jeden z działką 250m2 w cenie 899.000 zł.
Rozkład domu:
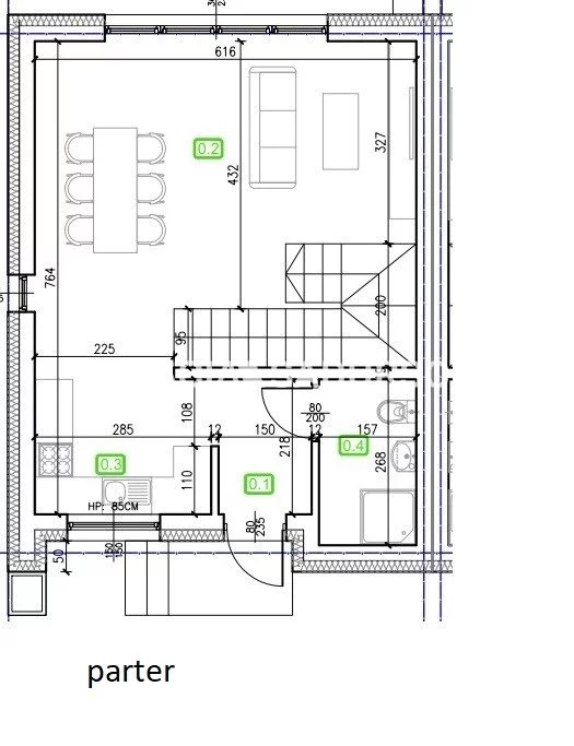
1) Parter
-salon + jadalnia 30,5m2
-otwarta kuchnia 5,5m2
-łazienka 3,9m2
-komunikacja 4m2
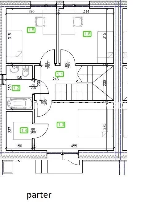
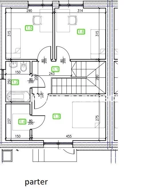
2) Piętro
-3 pokoje 11m2, 9m2, 8,3m2
-garderoba 2,9m2
-łazienki 3,6m2
-komunikacja 8m2
Media i dodatki
- Ogrzewanie podłogowe na dwóch kondygnacjach wraz piecem
Viessman Vitodens z zasobnikiem ładowanym warstwowo
- Prąd 3-fazowy pod płytę indukcyjną
- Szambo o pojemności 9,6 m3
- Rekuperacja wraz z rekuperatorem marki Samsung
- Przygotowane okablowanie pod instalacje alarmową
- Przygotowana zasilanie przy oknach pod rolety zewnętrzne
Wykorzystane materiały
- Fundamenty z bloczków fundamentowych
- Ściany zewnętrzne - pustak Porotherm 25 P+W
- Ocieplenie zewnętrzne - styropian 20cm Austrotherm/wełna elewacyjna,
tynk silikonowy
- Dach - dachówka Roben Monzaplus antracyt wraz z odgromieniem
- Poddasze ocieplone piana PUR
- Tynki wewnętrzne cementowo-wapienne Baumit MPI 25
- Okna trzyszybowe
- Drzwi antywłamaniowe
Otoczenie
- Dwa Miejsca parkingowe,
- Taras wyłożony kostką
- Ogrodzenie panelowe
- Droga utwardzona
Kontakt:
Michał Dzięcioł
Zapytaj o ofertę
+ 48 518 810 080
::DODATKOWE INFORMACJE
Prąd: jest
Gaz: tak - miejski
Woda: piec gazowy dwufunkcyjny
Dojazd: ASFALTOWA
Otoczenie: działki zabudowane
Ogrzewanie: gazowe
Kanalizacja: szambo
Internet: TAK
Telewizja kablowa: TAK
Komunikacja publ.: autobus miejski, tramwaj
Okna: PCV 3 szyby, ciepły montaż
Instalacje: dobre
Balkon: średni
Liczba balkonów: 1
Tarasy: taras duży
Liczba tarasów: 1
Powierzchnia balkonów/tarasów [m2]: 0,5000
Powierzchnia ogródka [m2]: 200
Wymiary działki [m]: 21x12
Zagosp. działki: niezagospodarowana
Ukształtowanie działki: płaska
Kształt działki: prostokąt
Rodzaj domu: bliźniak
Stan wybudowania: Stan deweloperski
Typ elewacji: baranek
Podst. materiał budowlany: cegła, pustak ceramiczny poroterm
Pokrycie dachu: dachówka
Pozwolenie na użytkowanie: tak
Powierzchnia użytkowa [m2]: 98
Stan budynku: do wykończenia
Podpiwniczenie: nie
Garaż: brak
Ogrodzenie działki: częściowo ogrodzona
Rok budowy: 2025
Liczba pokoi: 4
Wysokość pomieszczeń [m]: 2,8000
Liczba sypialni: 3
Powierzchnia pokoi [m2]: 30, 11, 9, 8
Podłogi pokoi: wylewka betonowa
Ściany pokoi: gładzie gipsowe
Wystawa okien - pokoje : Zach, Wsch, Pd, Pn
Typ kuchni: oddzielna
Rodzaj kuchni: jasna z oknem
Powierzchnia kuchni [m2]: 5,5
Podłoga kuchni: wylewka betonowa
Wystawa okien - kuchnia: Pn
Typ łazienki: razem z wc
Liczba łazienek: 2
Powierzchnia łazienki [m2]: 8
Glazura łazienki: bez glazury
Podłoga łazienki: wylewka betonowa
Wyposażenie łazienki: WC
Ściany łazienki: gładzie gipsowe
Liczba przedpokoi: 2
Powierzchnia przedpokoi [m2]: 10
Podłoga przedpokoi: wylewka betonowa
Ściany przedpokoi: tynk
::LINK DO STRONY
https://sadurscy.pl/offer/BS4-DS-312268
::KONTAKT DO AGENTA
Michał Dzięcioł
+48 518-810-080
Zapytaj o ofertę
::DANE BIURA
Oddział BS4, Krowodrza
Kołowa 5/3
30-134 Kraków
12 633-90-20
Pośrednik odpowiedzialny zawodowo za wykonanie umowy pośrednictwa: Dariusz Sadurski (licencja nr: 803)
Oferta wysłana z systemu Galactica Virgo