Dobra - przestronny, wolnostojący dom jednorodzinny o pow. użytkowej 179 m 2 z widokiem na Beskid Wyspowy .
Klimatyczny dom jednorodzinny położony w miejscowości Dobra zlokalizowanej u podnóża pasma Beskidu Wyspowego, z bezpośrednim dostępem do szlaków turystycznych prowadzących do wieży widokowej na szczycie Mogielicy, jak również do szczytów Ćwilin, Łopień i Śnieżnica oraz z łatwym dojazdem do stacji narciarskiej Kasina Wielka (Kasina Ski - 12 km).
Budynek został oddany do użytkowania w 2008 roku , posiada powierzchnię całkowitą wynoszącą 234 m 2 i posadowiony jest na widokowej działce o pow. 16 ar.
Konstrukcja budynku jest dwukondygnacyjna, częściowo podpiwniczona, wykonana w technologii tradycyjnej , murowanej ze stropami żelbetowymi, fundamenty betonowe - zazbrojone. Ściany zewnętrzne nośne wykonane w układzie: bloczki gazobetonowe (24 cm), warstwa izolacyjna z wełną mineralna (9 cm), wewnątrz warstwa cegły (12 cm), elewacja tynk mineralny z izolacją termiczną (styropian). Konstrukcja dachowa z więźbą drewnianą, dwuspadową, pokrycie dachowe wykonane z płyt epoksydowych zbrojonych włóknem szklanym , izolacja termiczna stropu i dachu z wełny mineralnej .
Budynek wyposażony w wewnętrzną instalację wodno-kanalizacyjną, system centralnego ogrzewania zasilany z pieca na paliwo stałe (24 kW) . Podgrzewanie ciepłej wody użytkowej z systemu CO, z wykorzystaniem elektrycznego zasobnika CWU (Biowar) .
Budynek posiada przyłącze do sieci elektroenergetycznej oraz sieci kanalizacyjnej, przyłącze w ody do gminnej sieci wodociągowej.
W skład nieruchomości wchodzą:
- parter składający się z pokoju dziennego z wyjściem na balkon (27,26 m2), kuchni z jadalnią (19,30 m2), 2 pokoje (14,56 m2, 10,76 m2), łazienki (5,25 m2) , WC (1,36 m2)
- poddasze składające się z 4 pokoi/sypialni (19,72 m2, 17,68 m2, 11,40 m2, 6,72 m2) , łazienki (2,20 m2) oraz komunikacji
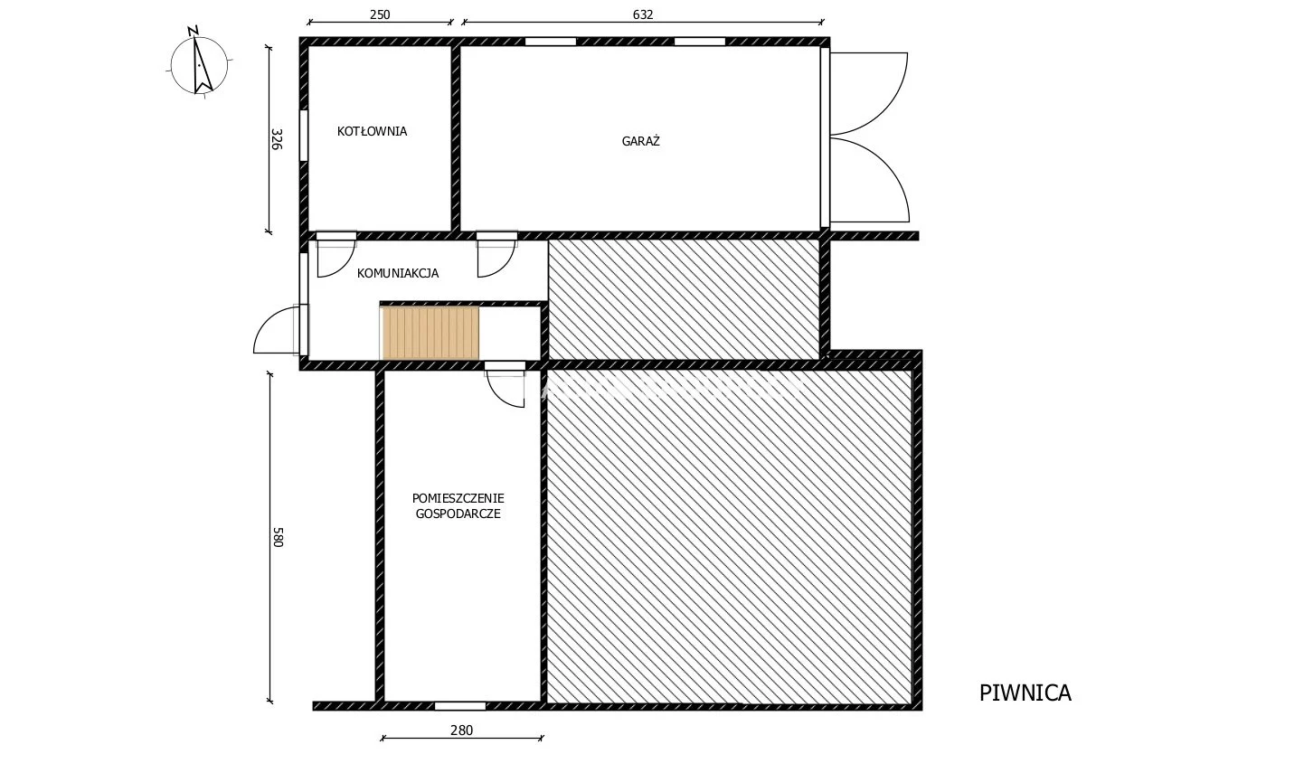
- piwnica obejmująca: garaż (20,16 m2), pomieszczenie gospodarcze (13,92 m2), kotłownię (8,00 m2)
Działka położona jest w niezwykle spokojnej okolicy, nad potokiem Łososinka, z nieruchomości roztacza się atrakcyjny widok na otaczające tereny zielone i pobliskie szczyty pasma Beskidu Wyspowego.
Nieruchomość bardzo dobrze skomunikowana , dojazd do działki zapewnia gminna droga asfaltowa o bardzo małym natężeniu ruchu, wjazd na DK 28 jest w odległości 900 m. Odległości: siedziba władz gminnych w Dobrej - 2,5 km, odległość do Limanowej wynosi 17 km , Myślenice są oddalone o 40 km, natomiast dystans do granicy miasta Krakowa to 50 km.
Najbliższe obiekty użyteczności publicznej : przystanek autobusowy - 900 m , sklep spożywczy - 800 m, szkoła podstawowa w Dobrej - 2,5 km.
Biuro pomaga bezpiecznie przeprowadzić transakcję.
Zapraszam do kontaktu i na prezentację nieruchomości.
Wojciech Sudoł
+48 509 907 533
Zapytaj o ofertę
::DODATKOWE INFORMACJE
Parking strzeżony (odległość w metrach) [m]: 1000
Prąd: w budynku
Gaz: jest
Woda: jest
Dojazd: asfalt
Otoczenie: góry
Ogrzewanie: piec węglowy
Kanalizacja: miejska
Komunikacja publ.: autobus podmiejski
Odległość do komunikacji publicznej [m]: 800
Odl. do sklepu [m]: 850
Odl. do szkoły [m]: 2700
Okna: PCV
Instalacje: dobre
Balkon: duży
Liczba balkonów: 1
Powierzchnia balkonów/tarasów [m2]: 10
Powierzchnia ogródka [m2]: 1400
Wymiary działki [m]: 34 x 71 x 27,5 x 34,2 x 15,6 x 41,5
Zagosp. działki: częściowo zagospodarowana
Ukształtowanie działki: lekko nachylona
Kształt działki: nieregularny
Rodzaj domu: jednorodzinny
Stan wybudowania: Pod klucz
Typ elewacji: tynk zwykły
Pokrycie dachu: inne
Powierzchnia użytkowa [m2]: 179
Stan budynku: do odświeżenia
Podpiwniczenie: częściowo podpiwniczony
Garaż: w bryle
Ogrodzenie działki: brak
Rok budowy: 2018
Liczba pokoi: 7
Wysokość pomieszczeń [m]: 2,5000
Liczba sypialni: 6
Powierzchnia pokoi [m2]: 108,1
Podłogi pokoi: drewniana
Ściany pokoi: zwykłe, malowane
Wyposażenie pokoi: meble - starego typu, częściowo umeblowane
Wystawa okien - pokoje : Wsch, Zach, Pd
Typ kuchni: otwarta połączona z jadalnią
Rodzaj kuchni: jasna z oknem
Powierzchnia kuchni [m2]: 19,3
Podłoga kuchni: gres
Wyposażenie kuchni: szafki stojące, zlewozmywak z baterią, szafki kuchenne, płyta gazowa, lodówka, kuchnia gazowa
Wystawa okien - kuchnia: Wsch
Typ łazienki: razem z wc
Liczba łazienek: 2
Powierzchnia łazienki [m2]: 7,45
Glazura łazienki: starszego typu
Podłoga łazienki: gres
Wyposażenie łazienki: WC, umywalka, natrysk
Ściany łazienki: glazura
Liczba WC: 1
Powierzchnia WC: 1,36
Glazura WC: starszego typu
Podłoga WC: gres
Ściany WC: glazura
Liczba przedpokoi: 3
Powierzchnia przedpokoi [m2]: 35,16
Podłoga przedpokoi: gres
Ściany przedpokoi: tynk ozdobny, tynk, malowane
::LINK DO STRONY
https://sadurscy.pl/offer/BS5-DS-308997
Zobacz Wirtualny Spacer: https://sb360.online/ojrp9u
::KONTAKT DO AGENTA
Wojciech Sudoł
+48 509-907-533
Zapytaj o ofertę
::DANE BIURA
Oddział BS5, Nowa Huta
Bracia Sadurscy Dariusz Sadurski
Os. Kazimierzowskie 36
31-844 Kraków
12 265 10 29