Na sprzedaż nowoczesny dom w zabudowie bliźniaczej o powierzchni użytkowej 122,5 m², położony na 3,9-arowej działce w zielonej i spokojnej dzielnicy Krakowa - Lubocza.
Budynek został zaprojektowany z myślą o komforcie mieszkańców, a jego funkcjonalny układ sprawdzi się doskonale zarówno dla rodziny z dziećmi, jak i dla osób pracujących zdalnie. Prezentowany segment B oferuje przestronny salon z dużymi przeszkleniami, połączony z kuchnią i jadalnią (ok. 30 m²), z bezpośrednim wyjściem do ogrodu. Znajduje się tu także dodatkowy pokój - idealny jako gabinet lub sypialnia gościnna, toaleta, wiatrołap, a także kotłownia oraz praktyczna spiżarnia z dostępem z kuchni.
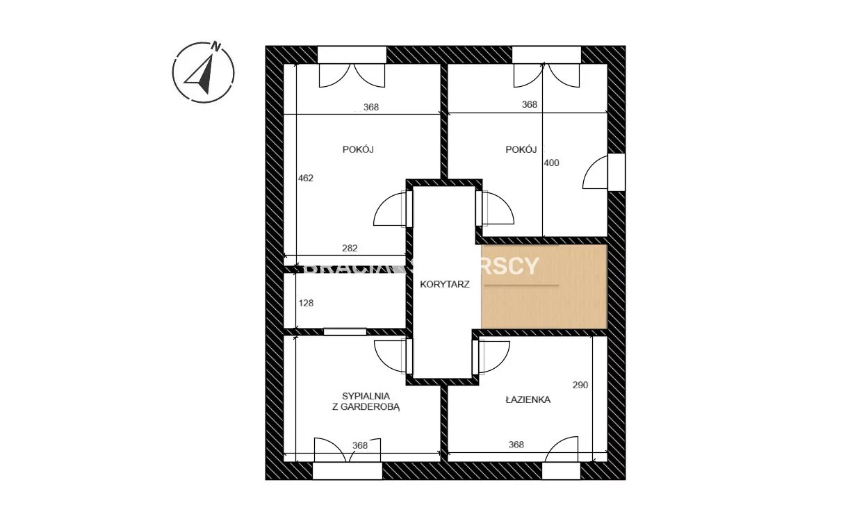
Na piętrze mieszczą się trzy ustawne sypialnie (bez skosów - strop żelbetowy) oraz duża łazienka z wydzielonym miejscem na pralkę i suszarkę. Cała przestrzeń jest jasna, funkcjonalna i łatwa do aranżacji. Dodatkowo dom posiada nieużytkowe, ocieplone poddasze z zamontowaną centralą wentylacyjną z rekuperacją.
Dom został wybudowany w wysokim standardzie - na solidnej płycie fundamentowej, z grubą warstwą ocieplenia (30 cm styroduru), stropem żelbetowym oraz dachem z blachy na rąbek (Ruukki). Zastosowano energooszczędne, trzyszybowe okna z ciepłym montażem (system Gealan), przesuwne drzwi tarasowe HST oraz aluminiowe drzwi wejściowe.
W budynku wykonano instalację ogrzewania podłogowego na całej powierzchni oraz nowoczesną wentylację mechaniczną z rekuperacją (kanały ukryte w podłodze). W cenie nieruchomości znajduje się również piec gazowy. Dom podłączony jest do wszystkich mediów: wody, kanalizacji, prądu oraz gazu. Dodatkowo na posesji przygotowano gniazdo siłowe, które umożliwia ładowanie samochodu elektrycznego.
Lokalizacja zapewnia szybki dostęp do centrum miasta, a jednocześnie gwarantuje ciszę i sąsiedztwo terenów zielonych. W pobliżu znajdują się szkoły, sklepy, przystanki MPK i inne udogodnienia potrzebne do wygodnego życia.
Cena: 1 1250 000 zł
Szczegóły oferty:
Grzegorz tel 796 541 485
::DODATKOWE INFORMACJE
Prąd: jest
Gaz: jest
Woda: tak - miejska
Dojazd: asfalt
Otoczenie: zabudowa jednorodzinna
Ogrzewanie: gazowe
Kanalizacja: tak
Komunikacja publ.: autobus miejski
Odległość do komunikacji publicznej [m]: 300
Odl. do sklepu [m]: 750
Odl. do szkoły [m]: 2000
Odl. do przedszkola [m]: 900
Instalacje: nowe
Balkon: brak
Powierzchnia ogródka [m2]: 200
Wymiary działki [m]: 12,6/31
Zagosp. działki: niezagospodarowana
Ukształtowanie działki: płaska
Kształt działki: prostokąt
Rodzaj domu: bliźniak
Stan wybudowania: Stan deweloperski
Typ elewacji: tynk szlachetny
Pokrycie dachu: blacha
Powierzchnia użytkowa [m2]: 122,4800
Stan budynku: do wykończenia
Podpiwniczenie: nie
Garaż: miejsce postojowe
Ogrodzenie działki: brak
Rok budowy: 2025
Liczba pokoi: 5
Wysokość pomieszczeń [m]: 2,8000
Liczba sypialni: 4
Powierzchnia pokoi [m2]: 30,18 7,61 13,59 14,61 15,03
Podłogi pokoi: wylewka
Ściany pokoi: tynk
Wystawa okien - pokoje : Pn, Pd
Typ kuchni: aneks kuchenny - połączony z salonem
Rodzaj kuchni: bez zabudowy
Podłoga kuchni: wylewka
Typ łazienki: razem z wc
Liczba łazienek: 2
Powierzchnia łazienki [m2]: 9,81 2,88
Glazura łazienki: bez glazury
Podłoga łazienki: wylewka
Ściany łazienki: tynk
Wystawa okien - łazienka : Pn
Liczba przedpokoi: 2
Powierzchnia przedpokoi [m2]: 8,15 5,29
Podłoga przedpokoi: wylewka
Ściany przedpokoi: tynk
::LINK DO STRONY
https://sadurscy.pl/offer/BS5-DS-311656
Zobacz Wirtualny Spacer: https://panoramy.galactica.pl/virgo/485744
::KONTAKT DO AGENTA
Grzegorz Zębala
+48 796-541-485
Zapytaj o ofertę
::DANE BIURA
Oddział BS5, Nowa Huta
Bracia Sadurscy Dariusz Sadurski
Os. Kazimierzowskie 36
31-844 Kraków
12 265 10 29
Pośrednik odpowiedzialny zawodowo za wykonanie umowy pośrednictwa: Dariusz Sadurski (licencja nr: 803)