DOM 100 M2 JAWCZYCE / POW. WIELICKI / GM. BISKUPICE / 4,6 ARA / STAN SUROWY ZAMKNIĘTY / 2025 / PREMIUM
KTO MOŻE ZAMIESZKAĆ ❓
Mieszkanie jest idealne dla pary, rodziny z dziećmi 2+3
JAKIE JEST ROZMIESZCZENIE DOMU ❓
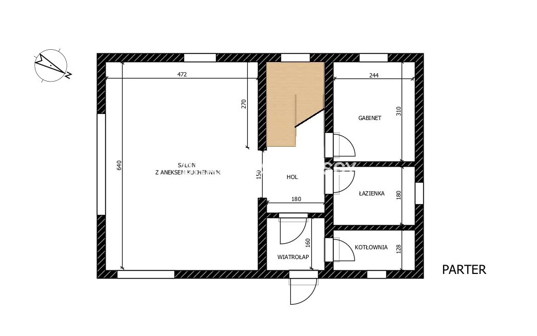
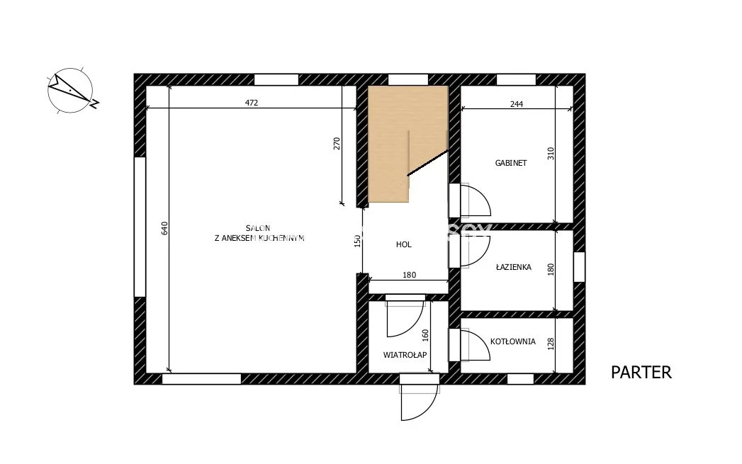
✅ PARTER ✅
✅ SALON Z ANEKSEM KUCHENNYM [ ok. 29,64 M2 ] południowy - wschód
- Z tarasem
✅ WIATROŁAP [ ok. 2,6 M2 ] północny - wschód
✅ HOL [ ok. 6,2 M2 ]
✅ POMIESZCZENIE GOSPODARCZE / KOTŁOWNIA[ ok. 3 M2 ] północny - zachód
✅ ŁAZIENKA [ ok. 4,2 M2 ] północny - zachód
✅ POKÓJ / GABINET [ ok. 7,4 M2 ] północny - zachód
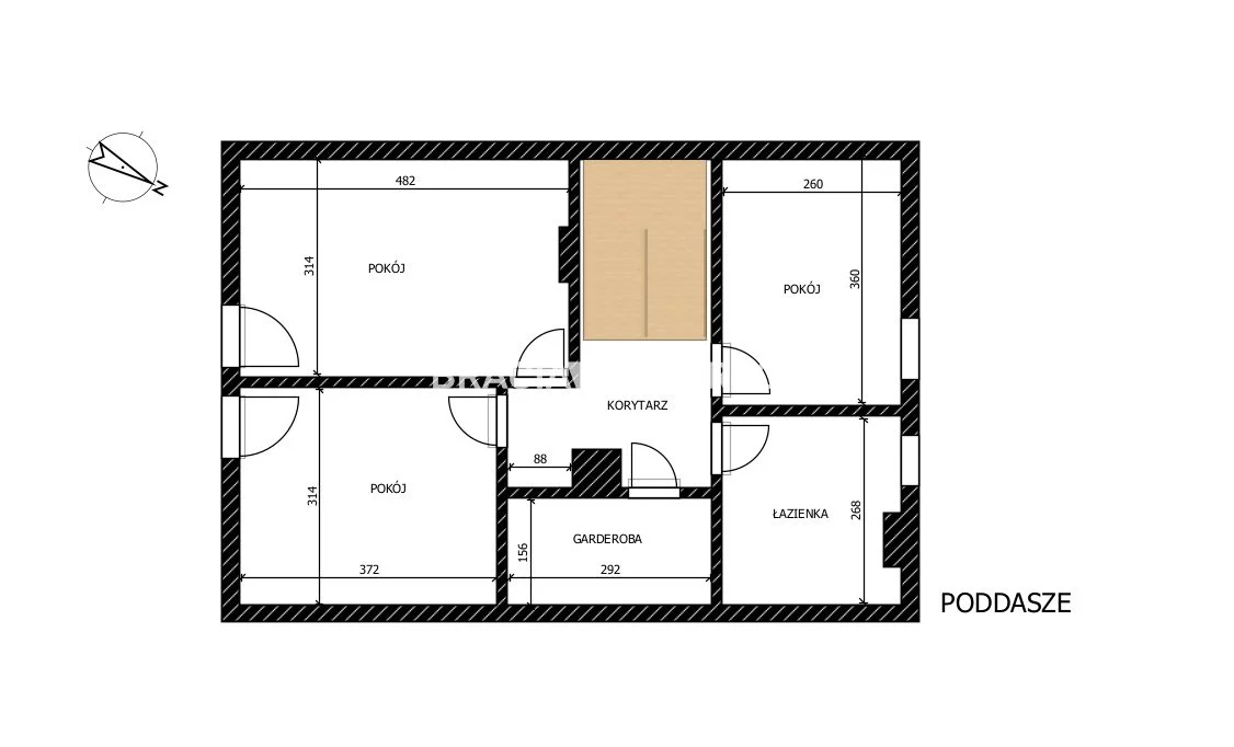
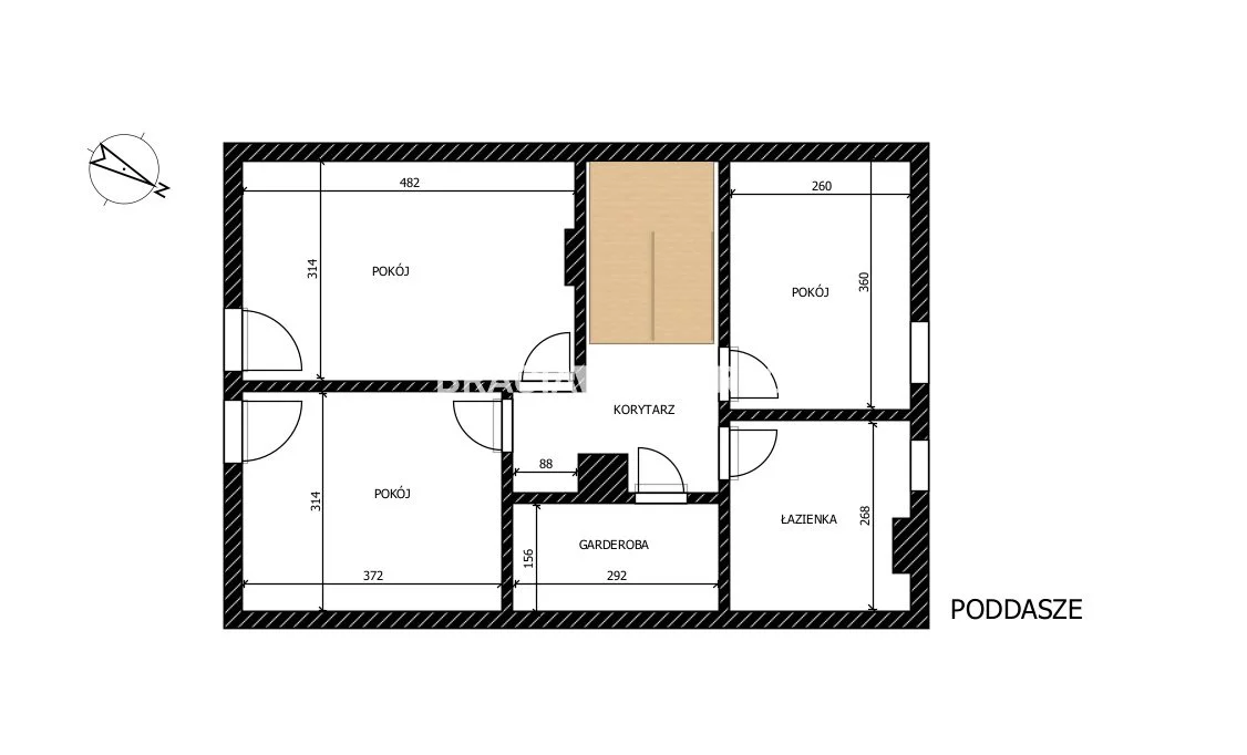
✅ PIERWSZE PIĘTRO ✅
✅ POKÓJ NR 1 [ ok. 12,6 M2 ] południowy - wschód
- Z balkonem
✅ POKÓJ NR 2 [ ok. 9,7 M2 ] południowy - wschód
- Z balkonem
✅ POKÓJ NR 3 [ ok. 7,9 M2 ] północny - zachód
✅ ŁAZIENKA [ ok. 5,4 M2 ] północny - zachód
✅ HOL [ ok. 8,5 M2 ]
✅ GARDEROBA[ ok. 2,9 M2 ] północny - wschód
Z CZEGO JEST ZROBIONY DOM❓
✅ Pustak ceramiczny porotherm - materiał dobrze izolujący termicznie, energooszczędny, akustyczny, trwały
✅ Okna 3-szybowe - energooszczędne, akustyczne, trzymające ciepło
✅ Dachówka ceramiczna - trwała, odporna na warunki atmosferyczne, izolująca termicznie, energooszczędna, ekologiczna, akustyczna
✅ Drzwi wejściowe antywłamaniowe
JAKIE SĄ ZALETY DOMU ❓
⚡ energooszczędny
⚡ z 2025
⚡ widokowa działka (góry)
⚡ przyjazne sąsiedztwo
⚡ blisko do Krakowa 30 min, Wieliczki 13 min, Gdowa 11 min samochodem
⚡ogrzewanie planowane na piec gazowy / ogrzewanie podłogowe
CZY DZIAŁKA JEST UZBROJONA❓
✔ dojazd droga asfaltowa gminna
✔ podjazd do domu - droga żwirowa
✔ prąd - doprowadzony do domu, / założona skrzynka
✔ woda - miejska w drodze
✔ gaz - w drodze
✔ kanalizacja - w budowie kanalizacja miejska
GDZIE MOŻNA ZAMIESZKAĆ ❓
JAWCZYCE / POW. WIELICKI / GM. BISKUPICE
✅ Sklep spożywczo-przemysłowy 4 min samochodem
✅ Biedronka 6 min samochodem
✅ Szkoła podstawowa 5 min samochodem
✅ Przedszkole 4 min samochodem
✅ Przystanek autobusowy 1 min pieszo
✅ Plac zabaw 1 min pieszo
✅ Kościół 4 min samochodem
ZAPRASZAM NA PREZENTACJĘ DOMU I !!! OBEJRZENIA VIDEO !!!
Prezentacja bezpłatna
Biuro pobiera jednorazową prowizję w momencie zakupu
Korzystając z usług biura kupujący może liczyć na gwarancję zwrotu zadatku (szczegóły ustalane indywidualnie)
Kontakt do agenta
Marzena Wróbel
537 - 765 - 461
::DODATKOWE INFORMACJE
Parking strzeżony (odległość w metrach) [m]: 10
Dojazd: droga utwardzona
Otoczenie: działki zabudowane
Ogrzewanie: centralne
Komunikacja publ.: autobus
Odległość do komunikacji publicznej [m]: 110
Odl. do sklepu [m]: 2700
Odl. do szkoły [m]: 3500
Odl. do przedszkola [m]: 3300
Odległość od plaży: 615000
Opłaty wg liczników: Woda ciepła, woda, prąd, gaz
Okna: PCV 3 szyby, ciepły montaż
Instalacje: brak
Zagosp. działki: zagospodarowana
Ukształtowanie działki: płaska
Kształt działki: prostokąt
Rodzaj domu: jednorodzinny
Stan wybudowania: Stan surowy zamknięty
Typ elewacji: brak
Pokrycie dachu: dachówka ceramiczna
Powierzchnia użytkowa [m2]: 100,0900
Stan budynku: do wykończenia
Ogrodzenie działki: brak
Rok budowy: 2025
Liczba pokoi: 5
Liczba sypialni: 4
Powierzchnia pokoi [m2]: 37,65
Wystawa okien - pokoje : Pd-Wsch, Pn-Zach
Typ kuchni: aneks kuchenny - połączony z salonem
Rodzaj kuchni: aneks kuchenny połączony z jadalnią i salonem
Powierzchnia kuchni [m2]: 29,64
Wystawa okien - kuchnia: Pd-Wsch
Liczba łazienek: 2
Powierzchnia łazienki [m2]: 9,6
Wystawa okien - łazienka : Pn-Zach
Liczba przedpokoi: 3
Powierzchnia przedpokoi [m2]: 17,3
Wystawa okien - przedpokój : Pd-Zach
::LINK DO STRONY
https://sadurscy.pl/offer/BS5-DS-311870
Zobacz Wirtualny Spacer: https://sb360.online/zj0lgv
::KONTAKT DO AGENTA
Marzena Wróbel
+48 537-765-461
+48 537-765-461
Zapytaj o ofertę
::DANE BIURA
Oddział BS5, Nowa Huta
Bracia Sadurscy Dariusz Sadurski
Os. Kazimierzowskie 36
31-844 Kraków
12 265 10 29