Nowoczesny dom jednorodzinny w Wapienicy - kameralne osiedle, widok na góry!
Lokalizacja
Nowy, wolnostojący dom jednorodzinny położony na działce 764 m² w zielonej i spokojnej części Bielska-Białej - Wapienica .
W sąsiedztwie starodrzew, góry widoczne z sypialni i bliskość terenów rekreacyjnych.
Kameralne osiedle kilku domów z dojazdem przez bramę automatyczną .
Doskonała komunikacja - szybki dojazd do centrum miasta i głównych tras wylotowych.
W pobliżu: sklepy, szkoła, przedszkole, przystanek autobusowy, ścieżki rowerowe, a także duże centra handlowe (Auchan, Leroy Merlin, Makro).
Budynek
Dom budowany w nowoczesnej technologii z wysokiej jakości materiałów, zapewniających trwałość i energooszczędność.
Planowane zakończenie budowy - stan deweloperski: koniec 2026 r.
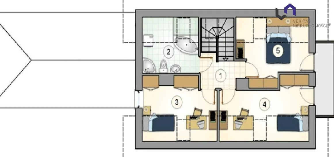
Układ pomieszczeń:
Parter : przestronny i słoneczny salon z wyjściem na taras i ogród, jadalnia, kuchnia, WC, garderoba, kotłownia, przedpokój.
Piętro : trzy sypialnie (dwie z wyjściem na duży balkon od strony południowej), łazienka. Istnieje możliwość indywidualnej aranżacji układu pomieszczeń.
Garaż : jednostanowiskowy, 20 m².
Standard wykonania
✅ Ściany z pustaka ceramicznego Wienerberger 25 cm
✅ Strop strunobetonowy typu smart
✅ Dachówka ceramiczna Wienerberger Alegra 9 (antracyt) + ocieplenie pianą PUR 20 cm
✅ Okna trzyszybowe Aluplast, dachowe Fakro
✅ Ocieplenie budynku 15 cm, tynk akrylowy z boniowaniem
✅ Drzwi wejściowe Gerda, brama garażowa Wiśniowski z napędem
✅ Instalacje: elektryczna, wodna, gazowa, kanalizacja miejska, CO (z grzejnikami i podłogówką w łazience)
✅ Przyłącza: prąd, gaz, woda, kanalizacja sanitarna i deszczowa, internet/kablówka
✅ Ogrodzenie frontowe betonowo-ażurowe, panelowe/siatka po bokach
✅ Udział w drodze dojazdowej
Dodatkowe atuty
✨ Możliwość wykończenia "pod klucz"
✨ Zaciszne otoczenie z widokiem na góry
✨ Nowoczesna architektura i przemyślany układ pomieszczeń
✨ Osiedle ogrodzone z automatyczną bramą
Cena, kontakt i szczegóły dostępne telefonicznie.
--------------------------
OFERUJEMY BEZPŁATNĄ POMOC W UZYSKANIU KREDYTU HIPOTECZNEGO.
UMÓW SIĘ Z NASZYM DORADCĄ JUŻ DZIŚ!
POLUB NASZ PROFIL NA FACEBOOK – CODZIENNIE NOWE OFERTY!!
UWAGA:
Prezentowana oferta nieruchomości sporządzona została na podstawie dokumentów oraz oświadczeń uzyskanych od właściciela podczas oględzin nieruchomości, ma charakter informacyjny, nie stanowi oferty handlowej w rozumieniu Art.66 par.1 Kodeksu Cywilnego.
1. USŁUGA POŚREDNICTWA JEST USŁUGĄ ODPŁATNĄ. (Art. 179b. Ustawy o Gospodarce Nieruchomościami "Pośrednictwo w obrocie nieruchomościami polega na odpłatnym wykonywaniu czynności zmierzających do zawarcia przez inne osoby umów:
1)nabycia lub zbycia praw do nieruchomości;
2)nabycia lub zbycia spółdzielczego własnościowego prawa do lokalu;
3)najmu lub dzierżawy nieruchomości lub ich części;
4)innych niż określone w pkt 1–3, których przedmiotem są prawa do nieruchomości lub ich części."
2. ZA OBEJRZENIE DANEJ NIERUCHOMOŚCI BIURO NIE POBIERA ŻADNYCH OPŁAT, wymagane jednak jest zawarcie umowy pośrednictwa i określenie wynagrodzenia biura w razie dojścia do transakcji.
Oferta wysłana z systemu BCK Galactica