|
WYJĄTKOWY DOM PARTEROWY NA SPRZEDAŻ - SUCHA, GMINA BIAŁOBRZEGI, MAZOWIECKIE
Na sprzedaż oferujemy nowoczesny, wolnostojący dom jednorodzinny z poddaszem nieużytkowym, zrealizowany na podstawie indywidualnie zmodyfikowanego projektu „Dom w Kłosówkach (G)”. Nieruchomość położona jest w spokojnej miejscowości Sucha, w gminie Białobrzegi - idealna propozycja dla osób poszukujących przestrzeni, komfortu i wysokiego standardu wykonania.
PARAMETRY NIERUCHOMOŚCI:
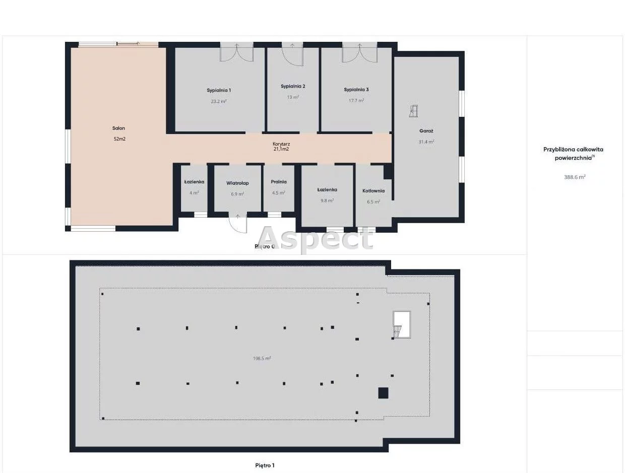
Powierzchnia użytkowa: ok. 190 m² - parter bez skosów
Powierzchnia działki: 1453 m² - ogrodzona z czterech stron
Kształt domu: prostokątny - ergonomiczny i nowoczesny układ funkcjonalny
Pomieszczenia: 3 przestronne sypialnie, salon z aneksem kuchennym, 2 łazienki, kotłownia, pralnia, wiatrołap
Garaż: jednostanowiskowy, w bryle budynku (31,4 m²)
STANDARD WYKOŃCZENIA - NAJWYŻSZA JAKOŚĆ MATERIAŁÓW:
Fundamenty:
Bloczek betonowy, podwójna izolacja (zew. i wew.) masą asfaltowo-kauczukową
Ocieplenie styropianem EPS Izoterm 100-37 (60 cm)
Siatka zbrojeniowa, klej PRO-MESH, folia kubełkowa
Ściany i dach:
Bloczek H+H, zaprawa cienkowarstwowa
Strop betonowy, więźba sosnowa
Blachodachówka BUD-MAT MURANO (gwarancja 30 lat), kolor antracyt
Okna:
Trzyszybowe, profil klasy A z okuciami RC1
System HIST MOTIONS - okna niskoprogowe w sypialniach
Powłoka ochronna z żelazem (strona zewnętrzna i wewnętrzna), kolor antracyt
Drzwi i brama garażowa:
Antywłamaniowe drzwi wejściowe z przeszkleniem (antracyt)
Brama WIŚNIOWSKI, napęd MOTO 600 io, możliwość otwierania bez zasilania
DZIAŁKA I OGRODZENIE:
Ogrodzona działka 1453 m² (pełne ogrodzenie panelowe 5 mm)
2 furtki i 2 bramy, w tym wjazdowa dwuskrzydłowa
Przygotowanie pod automatykę, kolor ogrodzenia: antracyt
INSTALACJE I MEDIAPLAN:
Instalacja elektryczna (wewnętrzna i zewnętrzna)
Instalacje przygotowane pod: alarm, kamery, wideofon
Przyłącza: telewizja, Internet
Oświetlenie zewnętrzne wychodzące z każdego pokoju
Kanalizacja miejska
Projekt pod ogrzewanie gazowe i peletowe (komin dostosowany do obu systemów)
LOKALIZACJA:
Miejscowość Sucha , gmina Białobrzegi, woj. mazowieckie
3 km do Białobrzegów
30 km do Radomia i Grójca
70 km do Warszawy
Spokojna okolica: las w sąsiedztwie, rekreacja nad Pilicą , place zabaw
Na miejscu: szkoła podstawowa, przedszkole, sklepy spożywcze
ATUTY OFERTY:
Dom zaprojektowany pod indywidualne potrzeby - bardzo funkcjonalny, nowoczesny i komfortowy
Przemyślany układ pomieszczeń - całość rozplanowana na jednym poziomie
Wysoka jakość materiałów - od fundamentów po stolarkę i pokrycie dachu
Świetna lokalizacja - cisza i natura, a jednocześnie szybki dojazd do miast
Cena: do uzgodnienia
Zadzwoń już dziś i umów się na prezentację.
Chętnie prześlemy dodatkowe informacje, rzut techniczny i umówimy dogodny termin.
::DODATKOWE INFORMACJE |
Parking strzeżony (odległość w metrach) [m]: 3000 |
Prąd: jest |
Gaz: jest |
Woda: ciepła z pieca CO |
Dojazd: droga utwardzona |
Otoczenie: działki zabudowane |
Ogrzewanie: własne gazowe - kocioł 2-funkcyjny |
Kanalizacja: miejska |
Nadaje się na biuro: TAK |
Komunikacja publ.: autobus podmiejski |
Odległość do komunikacji publicznej [m]: 1000 |
Odl. do sklepu [m]: 1400 |
Odl. do szkoły [m]: 1100 |
Odl. do przedszkola [m]: 1100 |
Przystosowania dla niepełnosprawnych: TAK |
Teren ogrodzony: TAK |
Opłaty wg liczników: gaz, prąd, woda |
Okna: aluminium |
Instalacje: nowe |
Balkon: brak |
Tarasy: taras duży |
Liczba tarasów: 1 |
Powierzchnia balkonów/tarasów [m2]: 25 |
Wymiary działki [m]: 32x46 |
Zagosp. działki: niezagospodarowana |
Ukształtowanie działki: płaska |
Kształt działki: prostokąt |
Rodzaj domu: wolnostojący |
Stan wybudowania: Stan deweloperski |
Typ elewacji: brak |
Pokrycie dachu: blachodachówka |
Powierzchnia użytkowa [m2]: 180 |
Podpiwniczenie: nie |
Garaż: w budynku |
Ogrodzenie działki: mieszane |
Grunt utwardzany: TAK |
Rok budowy: 2025 |
Liczba pokoi: 4 |
Wysokość pomieszczeń [m]: 2,7500 |
Liczba sypialni: 3 |
Powierzchnia pokoi [m2]: 127 |
Podłogi pokoi: parkiet |
Ściany pokoi: gładzie gipsowe |
Wystawa okien - pokoje : Zach, Wsch |
Typ kuchni: aneks kuchenny - połączony z salonem |
Rodzaj kuchni: otwarta |
Powierzchnia kuchni [m2]: 23 |
Podłoga kuchni: terakota |
Wystawa okien - kuchnia: Zach |
Glazura łazienki: glazura |
Ściany łazienki: glazura |
Wystawa okien - łazienka : Pd |
Liczba WC: 2 |
Powierzchnia WC: 13,8 |
Glazura WC: glazura |
Podłoga WC: terakota |
Wystawa okien WC: Pd |
Ściany WC: glazura |
Liczba przedpokoi: 1 |
Powierzchnia przedpokoi [m2]: 73,1 |
Podłoga przedpokoi: terakota |
Ściany przedpokoi: gładzie gipsowe |
::LINK DO STRONY |
http://www.warszawa.aspect.info.pl/oferta.aspx?id=1111771
::KONTAKT DO AGENTA |
Mariusz Turek |
533 648 404 |
Zapytaj o ofertę
::DANE BIURA |
Aspect Nieruchomości - Warszawa Targówek |
ATM JK sp. z o.o. |
Łodygowa 3 |
03-687 Warszawa |
+48 533 648 404 |
www.warszawa.aspect.info.pl
|
Oferta wysłana z systemu BCK Galactica