Opiekun oferty
Dominika Tądel (Kasprzyk)
Tel.: 602 101 602
Z przyjemnością przedstawiam Państwu lokal biurowy zlokalizowany w samym centrum Wrocławia przy ulicy Łaciarskiej.
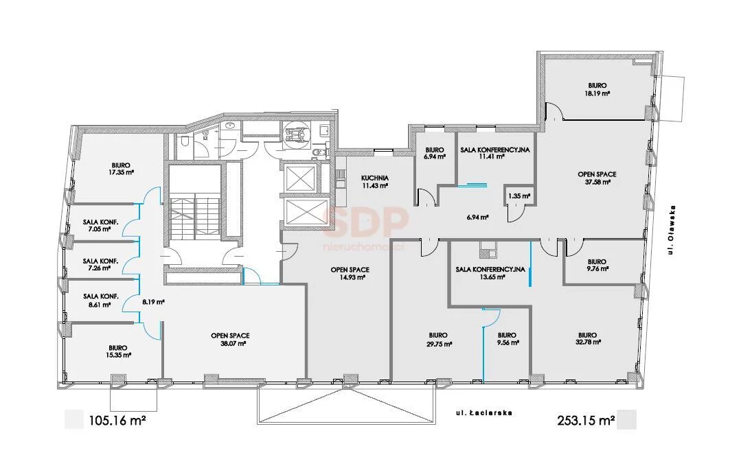
Cała przestrzeń ma powierzchnie 358,31 m2, podział powierzchni jest do uzgodnienia.
Lokalizacja:
Budynek posadowiony jest na Starym Mieście, blisko głównych arterii komunikacyjnych i jednego z największych węzłów przesiadkowych pl. Jana Pawła II. Lokalizacja umożliwia sprawny dojazd do wszystkich dzielnic miasta, zarówno transportem publicznym, jak i prywatnym. Dojazd samochodem do dworca Wrocław Główny zajmuje nieco ponad 10 min., do Autostradowej Obwodnicy Wrocławia - ok. 15 min., do Portu Lotniczego ok. 20min.
Dzięki położeniu w ścisłym centrum, korzystanie z wrocławskiej oferty handlowo-usługowej, gastronomicznej, kulturalnej oraz hotelowej, jest na wyciągniecie ręki.
Układ funkcjonalny:
-biuro x8
-sala konferencyjna x5
-open space x3
-kuchnia
-toalety
Opłaty:
16 EURO/M2 netto plus VAT czynsz najmu+ 25 ZŁ/M2 brutto media+ prąd według zużycia.
Najważniejsze informacje:
-możliwość wynajmu całego biura czy też określonej powierzchni- do uzgodnienia (w przy wynajmie jednego lokalu do jego metrażu należy doliczyć współczynnik piętrowy oraz budynkowy w wysokości 10,05%)
-lokale dostępne od zaraz
-miejsca postojowe:
abonament "SZEWSKA CENTRUM"
abonament Galeria Dominikańska
abonament Plac Nowy Targ
-obowiązuje kaucja
Rada Eksperta SDP Nieruchomości:
Biuro polecam dla rozwijających się firm ceniących sobie prestiżową lokalizacje i wygodę.
Polecam serdecznie i zapraszam na prezentacje!
Opiekun oferty:
Dominika Tądel (Kasprzyk)
Tel.: 602 101 602