Biuro na podnajem do w niskiej cenie do końca lutego !
Świetna lokalizacja blisko centrum, mocno doświetlona powierzchnia, tramwaj pod budynkiem.
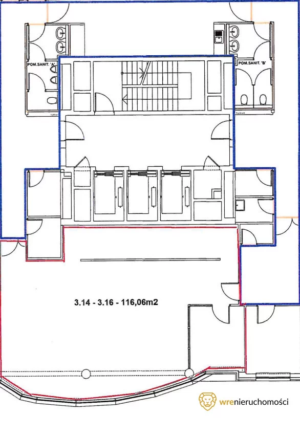
[ O OFERCIE ]
Duży open space z miejscem na 5 - 8 oddzielnych stanowisk pracy.
Oddzielna przeszklona sala na konferencje lub dodatkowy gabinet.
Wydzielony aneks kuchenny pełniący również funkcję magazynku, a także dodatkowo na części wspólnej kolejny duży aneks i oczywiście sanitariaty.
Powierzchnia netto 116,06 m2
Współczynnik powierzchni wspólnej 8% = łącznie powierzchnia 125,34 m2
29 PLN / m2 opłaty eksploatacyjnej, w tym czynsz i service chargé: prąd, klimatyzacja, ogrzewanie, woda, ścieki, Internet o prędkości 10 mb/s
+ Miejsce parkingowe od 180 zł netto za jedno miejsce
+ szybszy Internet - po stronie najemcy
Piętro 3, Millenium Tower
Zapraszam do kontaktu
577 277 060