Twoje oferty
0
0

Biuro do wynajęcia, 490,00 m², oferta nr 29182

19 600,00 zł

Polkowice, Działkowa

Biuro 490,00 m², oferta nr , 29182, Polkowice, Działkowa
29182 - zdjęcie nr 0
29182 - zdjęcie nr 1
29182 - zdjęcie nr 2
29182 - zdjęcie nr 3
29182 - zdjęcie nr 4
6
Lokalizacja biura 490 m²
Mapa
Galeria
Mapa

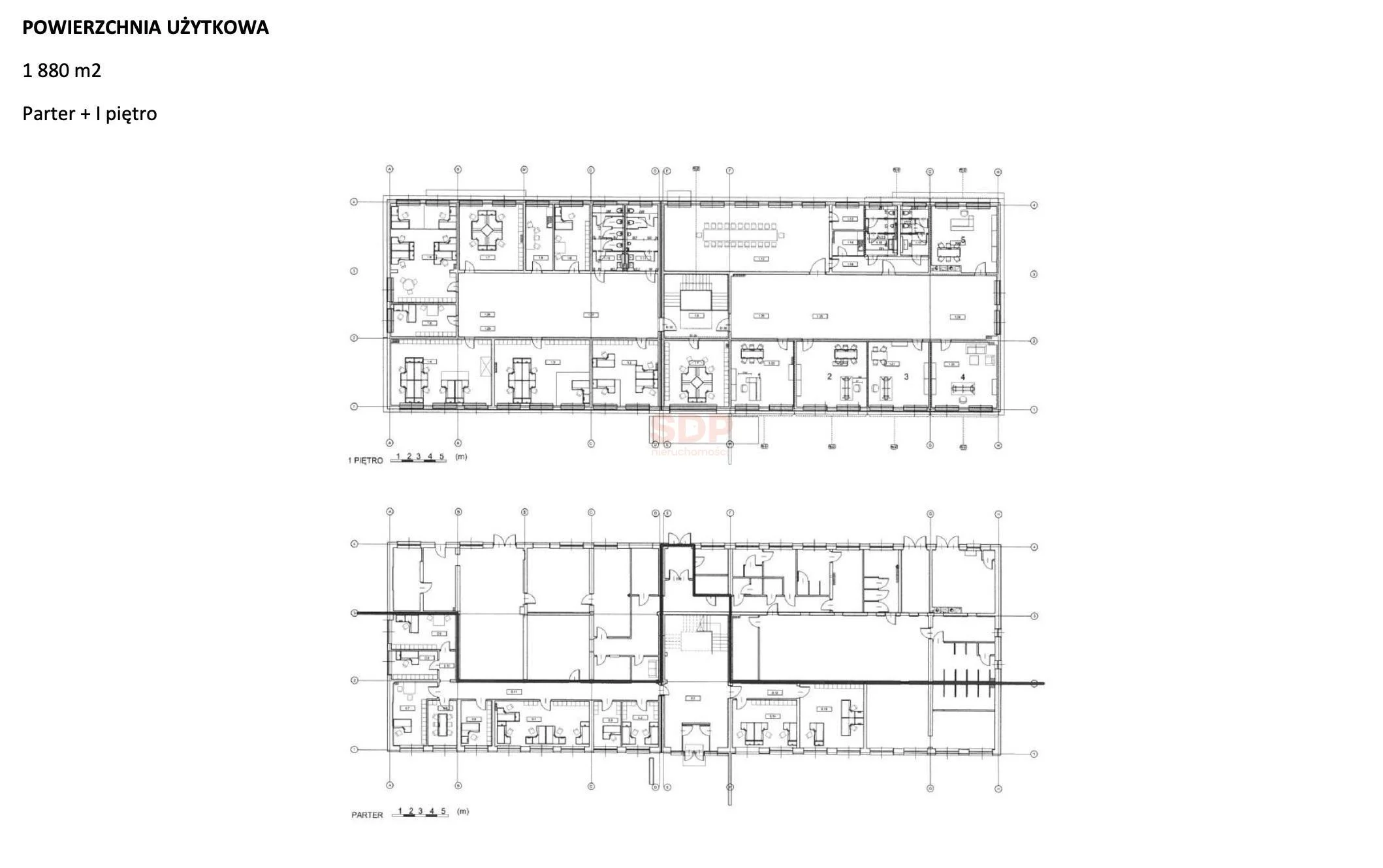
Powierzchnia:

490,00 m²

Treść ogłoszenia nie stanowi oferty w rozumieniu przepisów Kodeksu Cywilnego.