Biurowiec na wynajem Polkowice
Opiekun oferty: Paweł Grzesik
tel. 602 101 602
Zapraszam do zapoznania się z ofertą nowoczesnego biurowca w Polkowicach. Biurowiec usytuowany przy Zakładzie Górniczym Rudna.
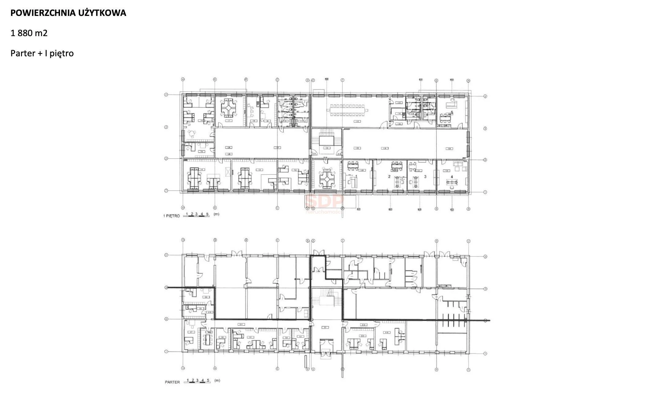
Budynek usadowiony na działce o powierzchni 3800 m2. Z tyłu budynku znajduje się duży parking naziemny i hala garażowa.
Połowa biurowca na wynajem o powierzchni 940 m2 składa się z całej kondygnacji możliwe jest wydzielenie 2 niezależnych modułów dla poszczególnych najemców. Przemyślany układ pomieszczeń i wysoki standard wykończenia to zalety które cechują ten budynek. W całym budynku ponad 30 pomieszczeń biurowych i socjalnych. W całym biurowcu jest rozprowadzona sieć teleinformatyczna, która schodzi się w serwerowni na parterze.
Warunki finansowe:
Czynsz najmu 35 zł m2 + opłaty eksploatacyjne
Jeśli potrzebujesz dodatkowych informacji lub chcesz się umówić na prezentacje zapraszamy do kontaktu.
Opiekun oferty: Paweł Grzesik
tel. 602 101 60