|
Nowoczesny budynek biurowo-usługowy
Na sprzedaż nowoczesny budynek biurowo-usługowy o powierzchni użytkowej 620 m² , położony na działce o powierzchni 1571 m² .
Obiekt wybudowany w 2020 roku , w bardzo dobrym stanie technicznym, z nowoczesną szklaną elewacją i dużym, utwardzonym placem manewrowym.
Budynek trzykondygnacyjny (parter i dwa piętra) o funkcjonalnym rozkładzie pomieszczeń:
Parter - 280 m²
Część usługowo-magazynowa o powierzchni 222,2 m² i wysokości dwóch kondygnacji, pomieszczenia socjalno-sanitarne 33,4 m² oraz klatka schodowa 22,4 m² .
Idealna przestrzeń do prowadzenia działalności usługowej, rehabilitacyjnej, magazynowej lub handlowej.
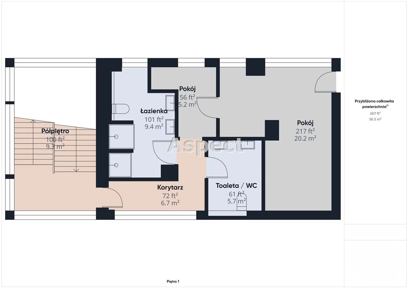
Pierwsze piętro - 56,5 m²
Część biurowo-sanitarna z toaletą, łazienką, korytarzem i klatką schodową.
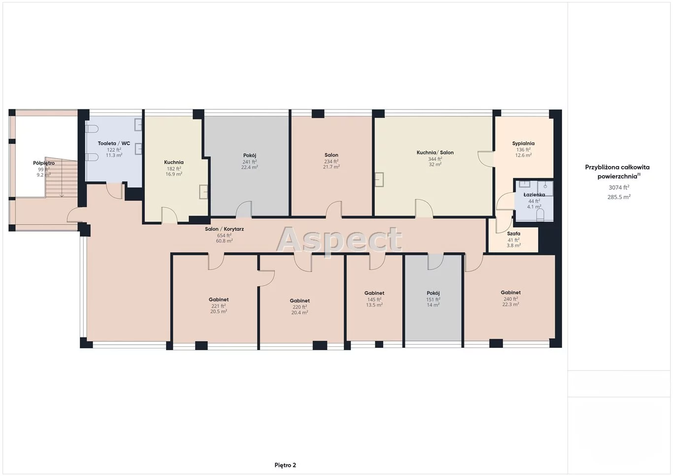
Drugie piętro - 285,5 m²
Strefa biurowo-socjalna z recepcją, salami konferencyjnymi, kuchnią, łazienkami oraz pokojami biurowymi.
Pomieszczenia jasne, klimatyzowane, wykończone w wysokim standardzie.
Budynek wyposażony w nowoczesne instalacje, wentylację, klimatyzację oraz system monitoringu.
Na terenie posesji znajduje się duży, wyłożony kostką parking oraz przestrzeń do swobodnego manewrowania pojazdami.
Możliwe przeznaczenie obiektu
nowoczesna przychodnia lub centrum medyczno-rehabilitacyjne,
centrum logistyczno-magazynowe z biurami,
biurowiec z możliwością wynajmu pomieszczeń,
obiekt handlowo-usługowy, np. dyskont spożywczy, przemysłowy lub budowlany.
Nieruchomość o dużym potencjale inwestycyjnym, położona w dogodnej lokalizacji, z łatwym dostępem komunikacyjnym.
Budynek gotowy do adaptacji i rozpoczęcia działalności.
::DODATKOWE INFORMACJE |
Rodzaj budynku: biurowiec |
Parking strzeżony (odległość w metrach) [m]: 100 |
Dozór budynku: monitoring |
Prąd: jest |
Gaz: jest |
Woda: ciepła z pieca CO |
Dojazd: asfalt |
Otoczenie: działki zabudowane |
Ogrzewanie: własne dla budynku |
Kanalizacja: miejska |
Linie telefoniczne: TAK |
Alarm: TAK |
Internet: TAK |
Komunikacja publ.: autobus podmiejski |
Odległość do komunikacji publicznej [m]: 150 |
Odl. od lotniska [m]: 50000 |
Winda: NIE |
Usytuowanie: trójstronne |
Drzwi antywłamaniowe: TAK |
Klimatyzacja: TAK |
Recepcja: TAK |
Sieć komputerowa: TAK |
Możliwość parkowania: tak |
Własny parking: TAK |
Naziemn. miejsc parking.: 30 |
Położenie lokalu: ruchliwa ulica |
Witryna wystawowa: duża |
Wejście: od ulicy |
Liczba wejść: 2 |
Podłogi: gres |
Teren ogrodzony: TAK |
Sala konferencyjna: TAK |
Opłaty wg liczników: CO, gaz, prąd, woda |
Stan lokalu: Do wprowadzenia |
Okna: aluminium |
Instalacje: nowe |
Powierzchnia użytkowa [m2]: 620 |
Rok budowy: 2020 |
Rodzaj lokalu: wielopoziomowy |
Przeznaczenie lokalu: magazynowy, produkcyjny, usługowy, handlowo-usługowy, handlowy, biurowy |
Pow. sali sprzedaży [m2]: 230 |
Pow. zaplecza [m2]: 110 |
Pow. ekspoz. handlowej [m2]: 230 |
Liczba pokoi: 14 |
Wysokość pomieszczeń [m]: 8 |
Liczba pomieszczeń biurowych: 9 |
Powierzchnia pomieszczeń biurowych od [m2]: 13,5000 |
Powierzchnia pomieszczeń biurowych do [m2]: 23,5000 |
Pow. pom. handlowych od [m2]: 120 |
Pow. pom. handlowych do [m2]: 220 |
Liczba pomieszczeń magazynowych: 1 |
Powierzchnia pomieszczeń magazynowych [m2]: 222 |
Liczba pomieszczeń socjalnych: 4 |
Powierzchnia pomieszczeń socjalnych [m2]: 40,5000 |
Liczba pomieszczeń sanitarnych: 5 |
Powierzchnia pomieszczeń sanitarnych [m2]: 35 |
::LINK DO STRONY |
http://www.warszawa.aspect.info.pl/oferta.aspx?id=1124081
Zobacz Wirtualny Spacer: https://tour.giraffe360.com/7afee55c5d284a9ab0c135371d97ba62/?nocookie
::KONTAKT DO AGENTA |
Mariusz Turek |
533 648 404 |
Zapytaj o ofertę
::DANE BIURA |
Aspect Nieruchomości - Warszawa Targówek |
ATM JK sp. z o.o. |
Łodygowa 3 |
03-687 Warszawa |
+48 533 648 404 |
www.warszawa.aspect.info.pl
|
Oferta wysłana z systemu BCK Galactica