Lokal biurowy w odnowionej kamienicy z windą - ul. Krowoderska.
Prezentujemy do wynajmu mieszkanie o przeznaczeniu biurowym w kamienicy o takim charakterze przy ul. Krowoderskiej w Krakowie.
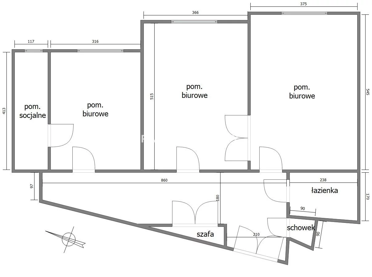
Lokal znajduje się na pierwszym piętrze odnowionej kamienicy z nowoczesną windą. Składa się z dużego przedpokoju, 3 oddzielnych pokoi oraz zaplecza socjalnego i łazienki. Ogrzewanie własne centralne piecem gazowym dwufunkcyjnym. Wszystkie media opomiarowane: gaz, prąd, woda.
Na podłodze zachowany oryginalny parkiet oraz odnowiona stolarka drzwiowa. Lokal w stanie do wejścia najchętniej dla spokojnego najemcy biurowego.
Czynsz najmu + czynsz do wspólnoty (ok. 490 zł) + media wg. liczników
Szczegóły:
Dariusz Zieliński
tel. 503-112-787
::DODATKOWE INFORMACJE
Kategoria oferty: Mieszkania dla rodzin z dziećmi
Rodzaj budynku: kamienica
Gaz: jest
Woda: piec gazowy dwufunkcyjny
Dojazd: asfalt
Otoczenie: działki zabudowane
Ogrzewanie: C.O. GAZOWE
Komunikacja publ.: miejska, autobus miejski, tramwaj
Odległość do komunikacji publicznej [m]: 100
Winda: TAK
Liczba wind: 1
Usytuowanie: jednostronne
Przystosowania dla niepełnosprawnych: TAK
Możliwość parkowania: płatne
Położenie lokalu: spokojna ulica
Witryna wystawowa: brak
Wejście: od ulicy
Liczba wejść: 3
Min. okres naj. (mies.): 12
Opłaty wg liczników: woda, prąd, gaz
Stan lokalu: bardzo dobry
Okna: PCV
Instalacje: dobre
Powierzchnia użytkowa [m2]: 80
Rok budowy: 1890
Rodzaj lokalu: jednopoziomowy
Przeznaczenie lokalu: biurowy
Liczba pokoi: 3
Wysokość pomieszczeń [m]: 3
Liczba kondyg. biurowych: 1
Typ kaucji: do uzgodnienia
::LINK DO STRONY
https://sadurscy.pl/offer/BS2-LW-312094
::KONTAKT DO AGENTA
Dariusz Zieliński
+48 503-112-787
Zapytaj o ofertę
::DANE BIURA
Oddział BS2, Rynek Pierwotny
Przewóz 47
30-081 Kraków
12 630-90-45
Pośrednik odpowiedzialny zawodowo za wykonanie umowy pośrednictwa: Dariusz Sadurski (licencja nr: 803)
--------------------------
::GRATIS | Nasza prowizja zawiera: koszt przedwstępnej notarialnej umowy sprzedaży nieruchomości z rynku wtórnego.
::GWARANCJA | Gwarancja zwrotu zadatku. Więcej informacji na sadurscy.pl/zwrot-zadatku/