Oferujemy lokal biurowy przy ul. Królewskiej 67 w Krakowie.
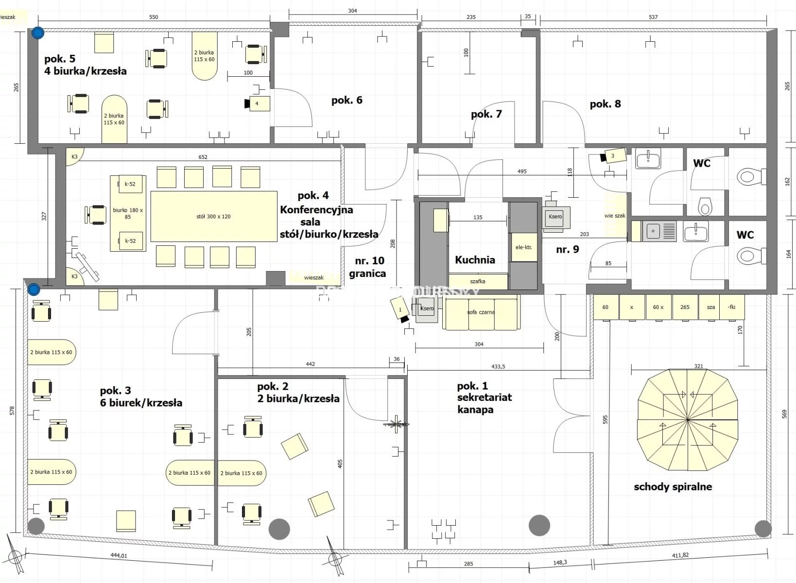
Lokal biurowy o powierzchni 202m2 (w tym 24m2 klatki schodowej) znajduje się na pierwszym piętrze nowoczesnego biurowca. Wejście główne wprost z chodnika z ul. Królewskiej (Przy ulicy liczne miejsca parkingowe). Na parterze działa salon sprzedaży operatora telefonii komórkowej.
W skład lokalu wchodzi:
8 pomieszczeń biurowych ( w tym sala konferencyjna),
korytarz,
2 x toaleta z umywalką i zmywarką,
zaplecze socjalne - mała kuchnia.
Właściciel zapewnia 4 miejsca parkingowe.
W budynku wewnętrzna klatka schodowa - schody żelbetowe/ wachlarzowe - bardzo wygodne i bezpieczne. Budynek wyposażony w instalację wod.-kan, elektryczną, odgromową, c.o, klimatyzacyjną i teletechniczną. Jest również światłowód. Ogrzewanie i ciepła woda miejska MPEC. W części pomieszczeń klimatyzacja kanałowa, w pozostałych pomieszczeniach klimatyzatory typu split.
Nieruchomość znajduje się przy jednej z głównych arterii komunikacyjnych w tej dzielnicy Krakowa. W odległości wzroku są przystanki tramwajowe i autobusowe oraz wzdłuż całej ulicy parking dla aut więc dostępność dla klientów jest bardzo dobra.
Cena: 13 900 zł netto + 23%VAT + zaliczka na media + prąd
Zapraszam do kontaktu:
Dariusz Zieliński
Zapytaj o ofertę
telefon 503-112-787
::DODATKOWE INFORMACJE
Rodzaj budynku: biurowiec
Dozór budynku: alarm
Gaz: brak
Woda: ciepła - miejska
Dojazd: asfalt
Otoczenie: centrum miasta
Ogrzewanie: C.O. Z SIECI MIEJSKIEJ
Linie telefoniczne: TAK
Alarm: TAK
Internet: TAK
Komunikacja publ.: MPK, miejska, autobus podmiejski, autobus miejski, tramwaj, tak, autobus
Odległość do komunikacji publicznej [m]: 50
Winda: NIE
Usytuowanie: dwustronne
Przystosowania dla niepełnosprawnych: TAK
Klimatyzacja: TAK
Klimatyzacja opis: kanałowa
Sieć komputerowa: TAK
Możliwość parkowania: płatne
Własny parking: TAK
Naziemn. miejsc parking.: 4
Położenie lokalu: ruchliwa ulica
Witryna wystawowa: od ulicy
Wejście: od ulicy
Liczba wejść: 1
Podłogi: parkiet
Położenie obiektu: centrum
Kategoria biurowca: B
Min. okres naj. (mies.): 24
Opłaty wg liczników: Woda zimna, Woda ciepła, woda, prąd, CO
Stan lokalu: bardzo dobry
Okna: aluminiowe 3 szybowe, ciepły montaż
Instalacje: dobre
Powierzchnia użytkowa [m2]: 200
Rok budowy: 1984
Ostatnia modernizacja: 2019
Rodzaj lokalu: wielopoziomowy
Przeznaczenie lokalu: biurowy
Czynsz najmu netto /m2: 13900
Liczba pokoi: 8
Wysokość pomieszczeń [m]: 3
Liczba kondyg. biurowych: 2
Typ kaucji: do uzgodnienia
::LINK DO STRONY
https://sadurscy.pl/offer/BS2-LW-305737
Zobacz Wirtualny Spacer: https://my.matterport.com/show/?m=yJbxQ2kXfEH
::KONTAKT DO AGENTA
Dariusz Zieliński
+48 503-112-787
Zapytaj o ofertę
::DANE BIURA
Oddział BS2, Rynek Pierwotny
Przewóz 47
30-081 Kraków
12 630-90-45
Pośrednik odpowiedzialny zawodowo za wykonanie umowy pośrednictwa: Dariusz Sadurski (licencja nr: 803)
--------------------------
::GRATIS | Nasza prowizja zawiera: koszt przedwstępnej notarialnej umowy sprzedaży nieruchomości z rynku wtórnego.
::GWARANCJA | Gwarancja zwrotu zadatku. Więcej informacji na sadurscy.pl/zwrot-zadatku/