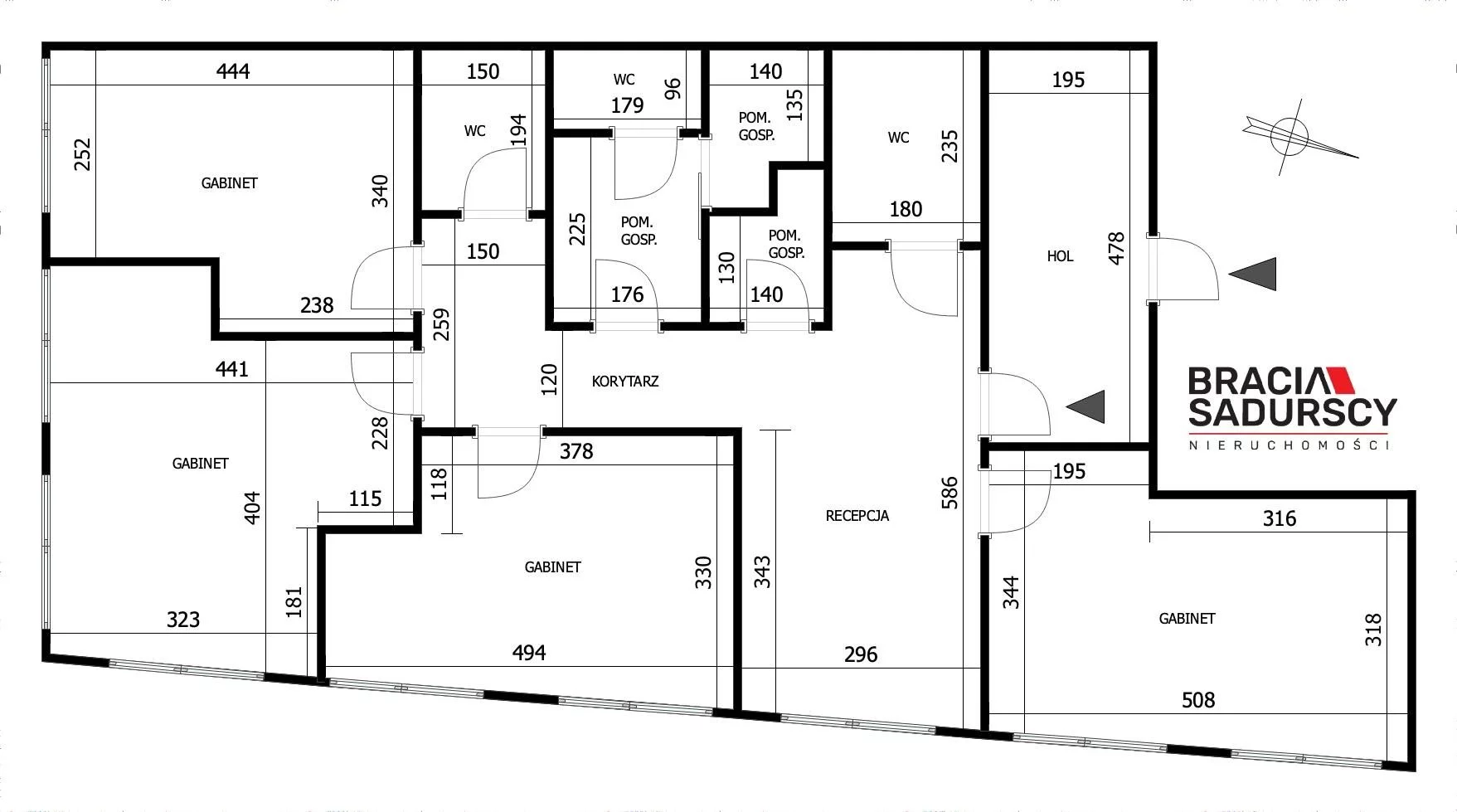
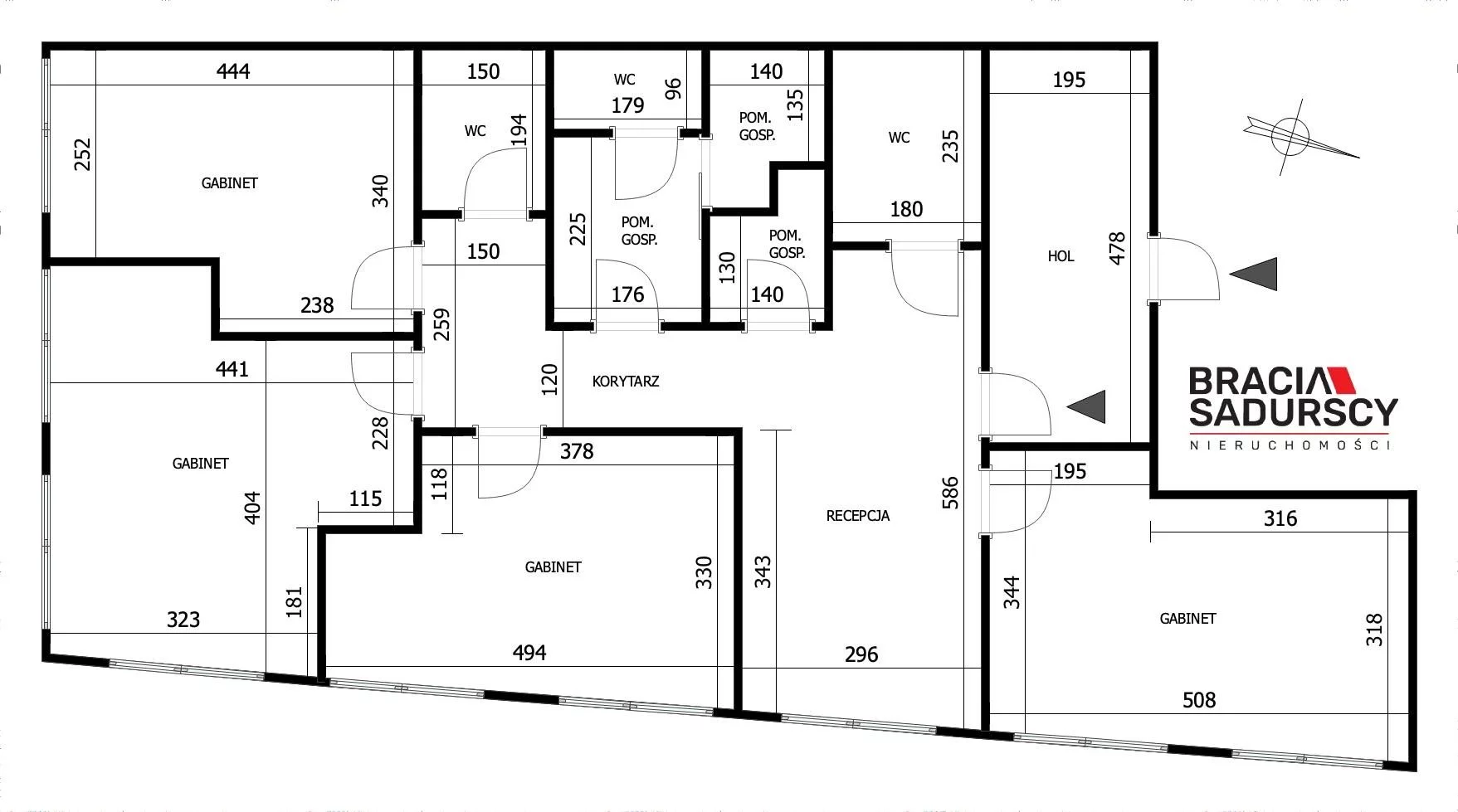
Lokal wykończony dla celów gabinetów medycznych/kliniki.
Oferujemy lokal użytkowy na pierwszym piętrze nowego biurowca z windą.
Lokal posiada wysokiej jakości wykończenie wnętrza, jest zaprojektowany oraz przystosowany dla najemcy z branży medycznej (w każdym gabinecie umywalka).
Do wynajęcia od zaraz.
Czynsz najmu netto + 23%VAT
Zapraszam do kontaktu
Dariusz Zieliński
T: +48 503-112-787
Zapytaj o ofertę
::DODATKOWE INFORMACJE
Rodzaj budynku: biurowiec
Dozór budynku: monitoring
Gaz: brak
Woda: tak - miejska
Dojazd: asfalt
Otoczenie: działki zabudowane
Ogrzewanie: C.O. miejskie
Linie telefoniczne: TAK
Alarm: TAK
Internet: TAK
Komunikacja publ.: MPK, autobus miejski, tramwaj, autobus
Winda: TAK
Liczba wind: 1
Usytuowanie: narożne
Przystosowania dla niepełnosprawnych: TAK
Recepcja: TAK
Witryna wystawowa: jest
Wejście: od ulicy
Liczba wejść: 1
Min. okres naj. (mies.): 12
Opłaty w czynszu: fundusz remontowy, Części wspólne, administracja
Opłaty wg liczników: prąd
Stan lokalu: bardzo dobry
Okna: aluminiowe
Instalacje: KLIMATYZACJA, KOMPUTEROWA, TELEFONICZNA
Powierzchnia użytkowa [m2]: 108
Rok budowy: 2023
Rodzaj lokalu: jednopoziomowy
Przeznaczenie lokalu: biurowy
Liczba pokoi: 6
Liczba kondyg. biurowych: 4
Typ kaucji: dwumiesięczna
::LINK DO STRONY
https://sadurscy.pl/offer/BS2-LW-307214
::KONTAKT DO AGENTA
Dariusz Zieliński
+48 503-112-787
Zapytaj o ofertę
::DANE BIURA
Oddział BS2, Rynek Pierwotny
Przewóz 47
30-081 Kraków
12 630-90-45
Pośrednik odpowiedzialny zawodowo za wykonanie umowy pośrednictwa: Dariusz Sadurski (licencja nr: 803)
--------------------------
::GRATIS | Nasza prowizja zawiera: koszt przedwstępnej notarialnej umowy sprzedaży nieruchomości z rynku wtórnego.
::GWARANCJA | Gwarancja zwrotu zadatku. Więcej informacji na sadurscy.pl/zwrot-zadatku/