Obecnie w sprzedaży. 11 typów.
1. Trzypoziomowe, trzypokojowe 69,37 m². Strefa dzienna: salon z jadalnią, kuchnia z jadalnią, WC, przedsionek, ogródek. Strefa nocna: pokój, sypialnia małżeńska, łazienka, korytarz wewnętrzny. Strefa strychowa: poddasze nieużytkowe. Propozycja dla pary lub rodziny 2+1, gdzie dodatkowy pokój świetnie sprawdzi się jako dziecięcy lub gabinet. Atutem jest osobna kuchnia z jadalnią, która pozwala gotować i jeść w spokoju, ogranicza rozprzestrzenianie zapachów i utrzymuje porządek w części wypoczynkowej; osobne WC na parterze skraca poranne kolejki i zapewnia wygodę gościom; poddasze to bezpieczne miejsce na przechowywanie rzeczy sezonowych, sprzętu i archiwum domowego.
Aktualnie w sprzedaży: 1 takie mieszkanie. Sprawdź »
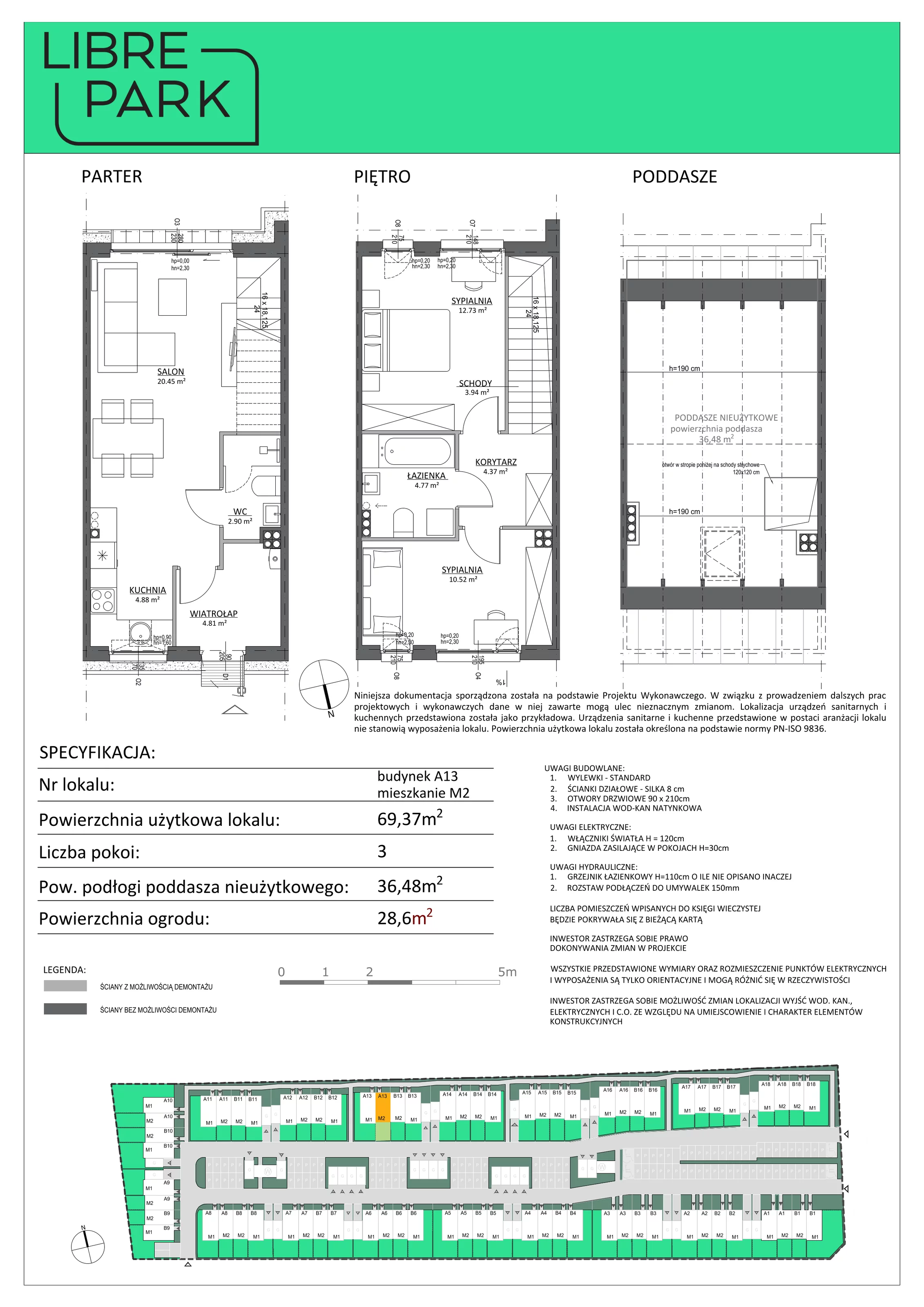
2. Trzypoziomowe, trzypokojowe 69,37 m². Strefa dzienna: salon z jadalnią, kuchnia z jadalnią, WC, korytarz wejściowy, ogródek. Strefa nocna: sypialnia małżeńska, sypialnia dla dzieci, łazienka, korytarz wewnętrzny. Strefa strychowa: poddasze nieużytkowe. Idealne dla rodziny z jednym dzieckiem, która ceni komfortową strefę wejścia z miejscem na garderobę. Osobna kuchnia porządkuje domowy rytm dnia i ułatwia gotowanie bez ingerencji w część wypoczynkową; osobne WC na dole zwiększa wygodę domowników i gości; poddasze zapewnia dodatkową przestrzeń na zapasy, bagaże i sportowe akcesoria.
Aktualnie w sprzedaży: 1 takie mieszkanie. Sprawdź »
3. Trzypoziomowe, trzypokojowe 69,37 m². Strefa dzienna: salon z jadalnią, kuchnia z jadalnią, WC, przedsionek, ogródek. Strefa nocna: sypialnia małżeńska, sypialnia dla dziecka, łazienka, korytarz wewnętrzny. Strefa strychowa: poddasze nieużytkowe. Wybór dla rodziny 2+1, która potrzebuje wygodnego wiatrołapu i oddzielonej kuchni do rodzinnych posiłków. Osobna kuchnia z jadalnią poprawia ergonomię gotowania i pozwala utrzymać ład w salonie; osobne WC przy wejściu to praktyczność na co dzień; poddasze daje możliwość uporządkowania domu dzięki pojemnej strefie składowania.
Aktualnie w sprzedaży: 1 takie mieszkanie. Sprawdź »
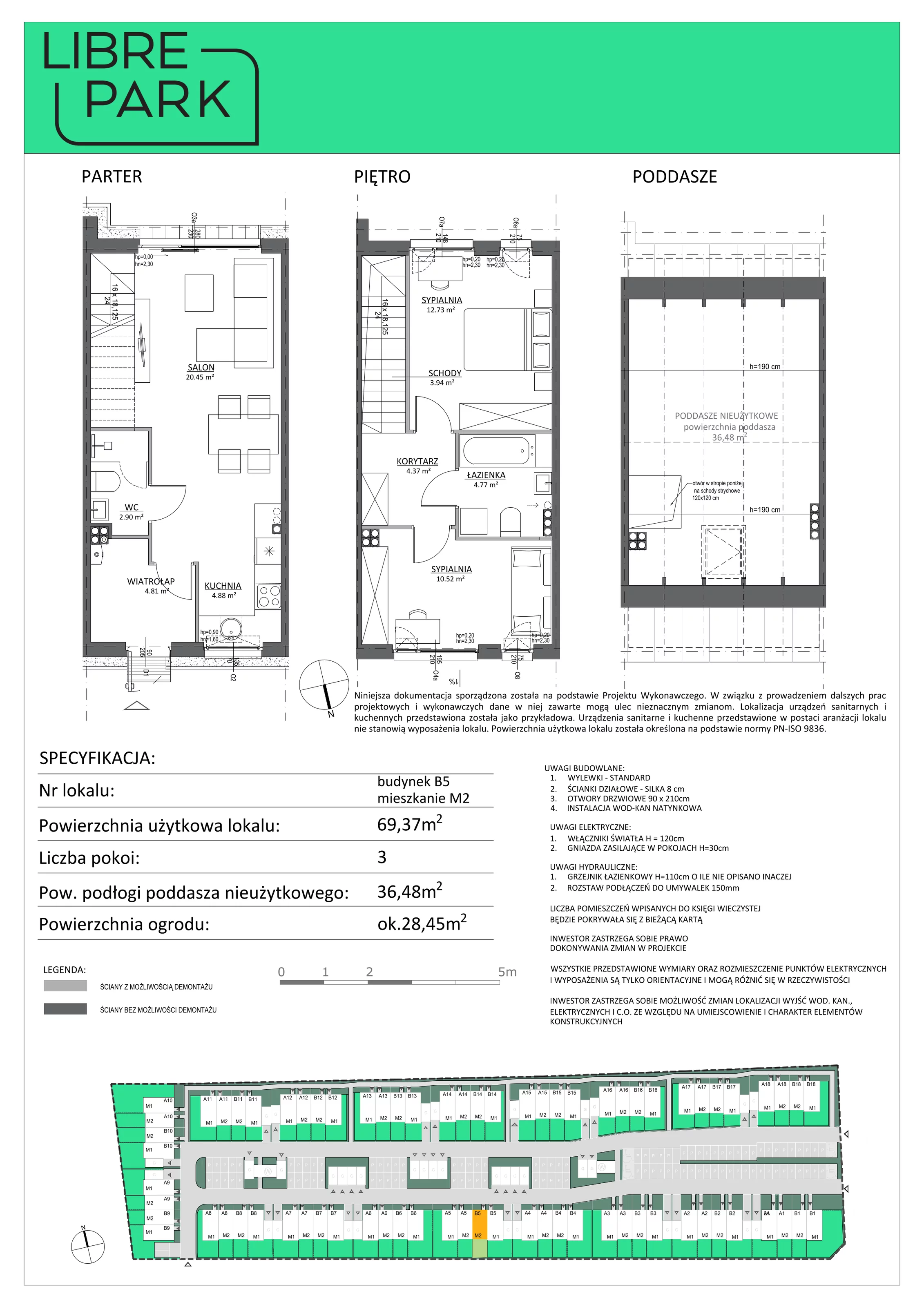
4. Trzypoziomowe, trzypokojowe 69,37 m². Strefa dzienna: salon z jadalnią, kuchnia z jadalnią, WC, przedsionek, ogródek. Strefa nocna: sypialnia małżeńska, sypialnia dla dziecka, łazienka, korytarz wewnętrzny. Strefa strychowa: poddasze nieużytkowe. Dobre dla pary planującej powiększenie rodziny albo dla właścicieli z potrzebą pokoju gościnnego. Osobna kuchnia gwarantuje domowy komfort, lepszą organizację pracy i czystość w strefie wypoczynku; osobne WC zwiększa swobodę podczas wizyt znajomych; poddasze stanowi cenną rezerwę miejsca na sezonowe ubrania, wózki czy dekoracje.
Aktualnie w sprzedaży: 5 takich mieszkań. Sprawdź »
5. Trzypoziomowe, trzypokojowe 69,37 m². Strefa dzienna: salon z jadalnią, kuchnia z jadalnią, WC, korytarz wejściowy, ogródek. Strefa nocna: sypialnia małżeńska, sypialnia dla dziecka, łazienka, korytarz wewnętrzny. Strefa strychowa: poddasze nieużytkowe. Stworzone dla rodziny 2+1 ceniącej proste, czytelne strefowanie i komfortowe wejście z miejscem na buty i kurtki. Osobna kuchnia ułatwia gotowanie bez rozpraszania i pozwala serwować posiłki przy rodzinnym stole; osobne WC na parterze to codzienna wygoda; poddasze porządkuje przestrzeń mieszkania, przyjmując rzeczy rzadziej używane.
Aktualnie w sprzedaży: 1 takie mieszkanie. Sprawdź »
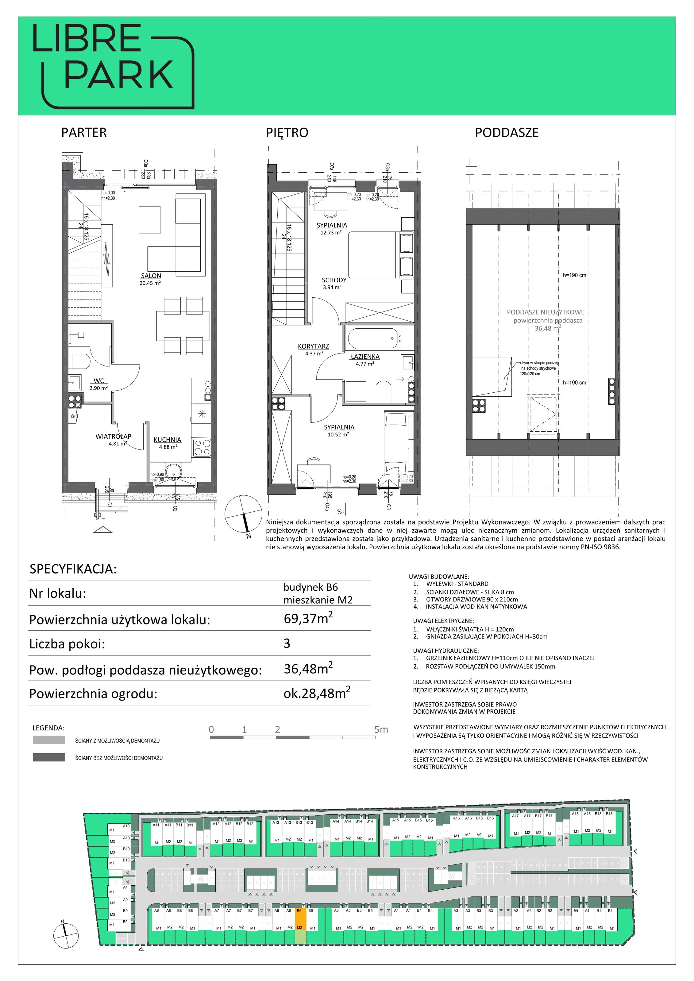
6. Trzypoziomowe, trzypokojowe 69,37 m². Strefa dzienna: salon z jadalnią, kuchnia z jadalnią, WC, korytarz wejściowy, ogródek. Strefa nocna: sypialnia małżeńska, sypialnia dla dziecka, łazienka, korytarz wewnętrzny. Strefa strychowa: poddasze nieużytkowe. Rozsądny wybór dla młodej rodziny szukającej funkcjonalności przy kompaktowym metrażu. Osobna kuchnia zwiększa higienę i porządek w części dziennej; osobne WC oszczędza czas rano i podczas spotkań; poddasze pozwala trzymać w domu tylko to, co naprawdę potrzebne na co dzień.
Aktualnie w sprzedaży: 1 takie mieszkanie. Sprawdź »
7. Trzypoziomowe, trzypokojowe 69,37 m². Strefa dzienna: salon z jadalnią, kuchnia z jadalnią, WC, przedsionek, ogródek. Strefa nocna: pokój, sypialnia małżeńska, łazienka, korytarz wewnętrzny. Strefa strychowa: poddasze nieużytkowe. Znakomite dla pary, która chce mieć gabinet lub pokój gościnny, z wygodnym przedsionkiem na odłożenie codzienności po wejściu. Osobna kuchnia zapewnia spokój podczas gotowania i zachowanie czystości w salonie; osobne WC na parterze to komfort dla domowników i odwiedzających; poddasze działa jak domowy magazyn, dzięki czemu w pokojach panuje ład.
Aktualnie w sprzedaży: 1 takie mieszkanie. Sprawdź »
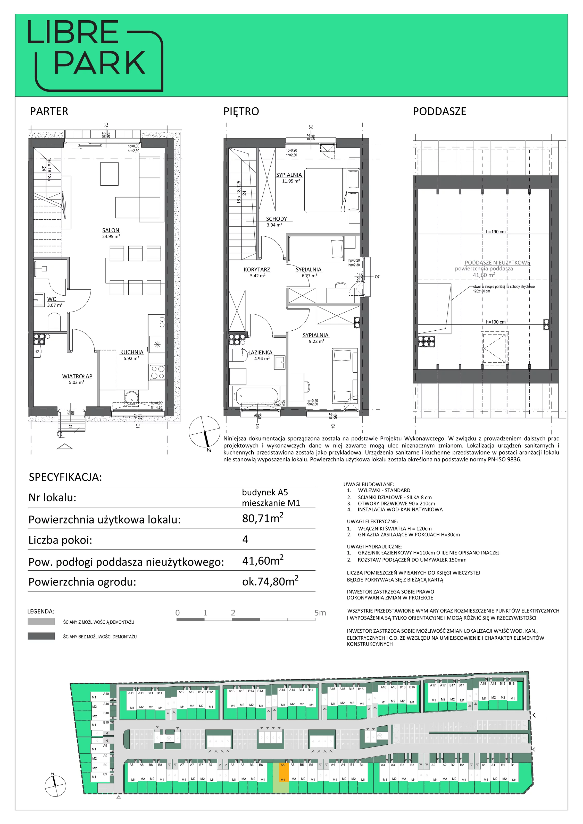
8. Trzypoziomowe, czteropokojowe 80,71 m². Strefa dzienna: salon z jadalnią, kuchnia z jadalnią, WC, przedsionek, ogródek. Strefa nocna: pokój, sypialnia małżeńska, sypialnia dla dziecka, łazienka, korytarz wewnętrzny. Strefa strychowa: poddasze nieużytkowe. Idealne dla rodziny 2+1 lub 2+1 z potrzebą dodatkowego gabinetu lub pracowni. Osobna kuchnia pozwala wygodnie gotować i serwować posiłki bez ingerowania w strefę relaksu; osobne WC zapewnia sprawną organizację dnia; poddasze przechowuje cały ekwipunek sezonowy, zwalniając miejsce w szafach.
Aktualnie w sprzedaży: 3 takie mieszkania. Sprawdź »
9. Trzypoziomowe, czteropokojowe 80,71 m². Strefa dzienna: salon z jadalnią, kuchnia z jadalnią, WC, przedsionek, ogródek. Strefa nocna: sypialnia małżeńska, sypialnia dla dziecka, sypialnia dla dziecka, łazienka, korytarz wewnętrzny. Strefa strychowa: poddasze nieużytkowe. Doskonałe dla rodziny 2+2, gdzie dwie sypialnie dla dzieci oznaczają prywatność i mniej codziennych konfliktów o przestrzeń. Osobna kuchnia upraszcza domową logistykę i utrzymuje porządek w salonie; osobne WC zwiększa wygodę poranków; poddasze przejmuje rolę dużej garderoby sezonowej i składziku. Atutem jest liczba pokoi dziecięcych, która pozwala dopasować przestrzeń do wieku i potrzeb rodzeństwa.
Aktualnie w sprzedaży: 2 takie mieszkania. Sprawdź »
10. Trzypoziomowe, czteropokojowe 80,71 m². Strefa dzienna: salon z jadalnią, kuchnia z jadalnią, WC, korytarz wejściowy, ogródek. Strefa nocna: sypialnia małżeńska, sypialnia dla dziecka, sypialnia dla dziecka, łazienka, korytarz wewnętrzny. Strefa strychowa: poddasze nieużytkowe. Świetne dla aktywnej rodziny 2+2, która chce mieć czytelne wejście i dwa pokoje dziecięce z możliwością ich personalizacji. Osobna kuchnia wspiera zdrowe nawyki i organizację posiłków; osobne WC umożliwia jednoczesne korzystanie z łazienki na piętrze; poddasze pomaga utrzymać porządek w pokojach, przejmując przedmioty rzadziej używane. Atutem jest liczba sypialni dla dzieci pozwalająca każdemu mieć własną strefę.
Aktualnie w sprzedaży: 1 takie mieszkanie. Sprawdź »
11. Trzypoziomowe, czteropokojowe 80,71 m². Strefa dzienna: salon z jadalnią, kuchnia z jadalnią, WC, przedsionek, ogródek. Strefa nocna: sypialnia małżeńska, sypialnia dla dziecka, sypialnia dla dziecka, łazienka, korytarz wewnętrzny. Strefa strychowa: poddasze nieużytkowe. Propozycja dla rodzin, które chcą połączyć komfort dwóch dziecięcych pokoi z praktycznym wiatrołapem. Osobna kuchnia porządkuje codzienne rytuały i ogranicza hałas w salonie; osobne WC to większy komfort życia; poddasze działa jak elastyczny bufor na rzeczy i akcesoria. Dwie sypialnie dla dzieci to równowaga między wspólnym życiem a prywatnością.
Aktualnie w sprzedaży: 4 takie mieszkania. Sprawdź »
Podsumowanie: W ofercie znajdują się kompaktowe trzy pokoje i przestronniejsze cztery pokoje, wszystkie trzypoziomowe, z wyraźnym podziałem na strefę dzienną, nocną i strychową. Każde mieszkanie oferuje osobną kuchnię, osobne WC na parterze oraz praktyczne poddasze, a wybrane układy zapewniają dwie sypialnie dla dzieci, odpowiadając potrzebom rodzin o różnej wielkości.